

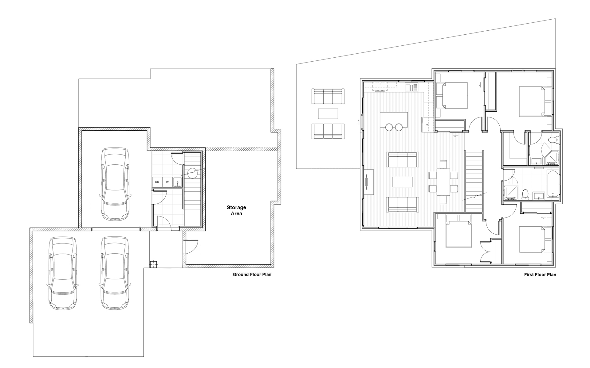
Welcome to 11 Ti Tree Lane, Stanmore Bay – Low maintenance living with stunning bush views!







Signature Homes is proudly 100% Kiwi-owned and has been in business since 1983. In that time, our name has become synonymous with uncompromised design, quality and service, and our entire network is committed to the continuous improvement of the services we offer.
We are a connected network of 14 franchises stretching from Northland to Otago who employ some of the best designers and builders Aotearoa has to offer and have built strong relationships with the country’s leading building material suppliers.
We provide a one stop solution for all design and construction needs, including a wide range of building options to suit Kiwi homeowners, from affordable pre-designed plans to custom Design & Build services, House and Land packages to house removal and subdividing projects.
