
Exceptional Family Living in the Heart of Park Green
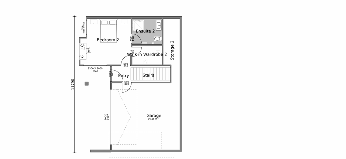
Situated of Parkmore Drive, this home has four double bedrooms, three bathrooms, study, a separate laundry, an open plan kitchen, dining, lounge, plus a living/media room - an ideal home for large families or those looking for more space.
Park Green is a beautiful new community known for its wide green spaces, peaceful coastal estuary, and modern, family-friendly design. With walkways, cycle paths, parks, and planned amenities, it offers a calm and refreshing lifestyle. Located approximately 30 minutes south of Auckland’s CBD, nestled between Karaka and Drury, Park Green provides easy access to SH1 via the Drury interchange as well as Great South Road—ideal for commuters and families alike.
Our Signature Service Promise
We believe building your home should feel exciting, not stressful. That’s why when you choose Signature Homes, you’ll get:
Ready to stop dreaming and start building?
Contact Signature Homes Papakura & Franklin today and let’s turn your vision into your front-door key.
All house and land packages are fully customisable and can be tailored to suit your lifestyle and needs. Final home appearance may vary based on design choices. Price is subject to engineering and final design requirements.

4 | 3 | 2 | 2 | 1 |
Signature Homes is proudly 100% Kiwi-owned and has been in business since 1983. In that time, our name has become synonymous with uncompromised design, quality and service, and our entire network is committed to the continuous improvement of the services we offer.
We are a connected network of 14 franchises stretching from Northland to Otago who employ some of the best designers and builders Aotearoa has to offer and have built strong relationships with the country’s leading building material suppliers.
We provide a one stop solution for all design and construction needs, including a wide range of building options to suit Kiwi homeowners, from affordable pre-designed plans to custom Design & Build services, House and Land packages to house removal and subdividing projects.
