









































An Entertainers Delight. Park Green
From $1,714,666
Lot 334, Stage 3A, Parkmore Drive, Park Green,
Section size 362㎡
House size 234㎡
- Beds4
- Bathrooms2.5
- Receptions3
- Parking3
or email TamsinRedington@signature.co.nz
Visit Signature Homes Papakura & Franklin
Enquire about this Package
An Entertainers Delight. Park Green
Lot 334, Stage 3A, Parkmore Drive, Park Green,
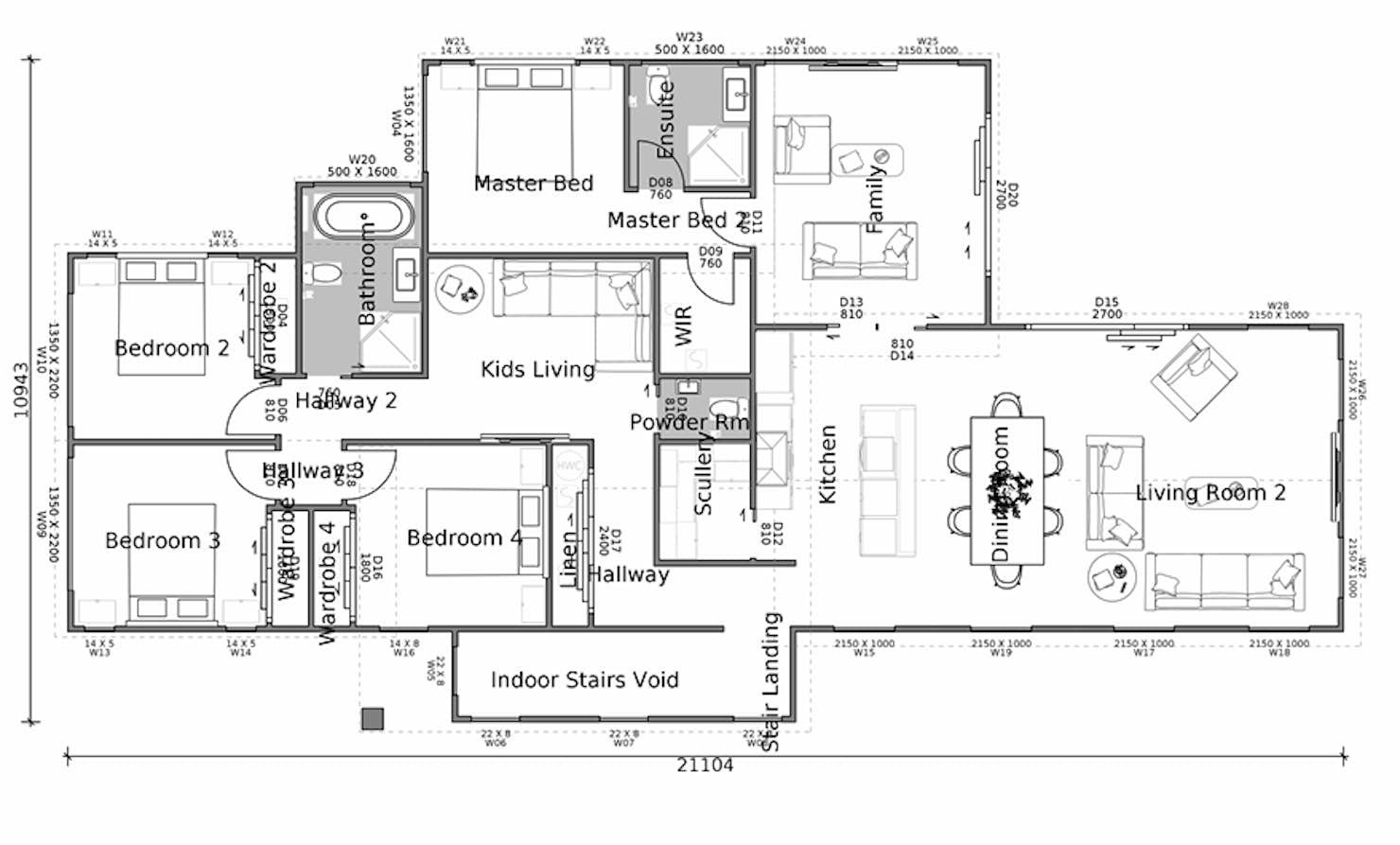
The Ultimate Family Home on Parkmore Drive, Park Green
Some homes are built for living - this one is built for family life in every sense. Situated on Parkmore Drive in the vibrant Park Green community, this four-bedroom, 2.5-bathroom home has the space, layout and flexibility that growing families genuinely need. With a separate kids' living room on top of the main open-plan living and dining, everyone gets their own space, and you still have room to entertain.
The triple garage, generous patio and fully fenced section mean the whole family is catered for, inside and out.
Life in Park Green
Park Green is one of South Auckland's most exciting new communities. Set on the Hingaia Peninsula with sweeping access to a coastal estuary, it's a neighbourhood designed around family life and the outdoors.
Cycleways, walkways and a waterfront café give the area a relaxed village feel, while the Park Green General Store takes care of everyday essentials. A new primary school and early childhood centre are part of the development too, so the kids are well looked after close to home.
Getting around is easy - the Southern Motorway is close by and Papakura Train Station is just three kilometres away, making Auckland and Manukau City Centre a straightforward commute. On weekends, playgrounds and a whitewater park are right on your doorstep.
This is a community built for families - and this home was built to match.
House & Land Package Includes
- Four double bedrooms
- 2.5 bathrooms
- Open-plan kitchen, dining and living
- Family room plus separate kids' living room
- Triple car garage
- Driveway, patio, paving, landscaping & fencing
Our Signature Service Promise
We believe building your home should feel exciting, not stressful. That’s why when you choose Signature Homes, you’ll get:
- The best building guarantees in NZ — so you can build with total peace of mind.
- The best service in the business — we’re with you every step of the way.
- Transparent, accurate pricing — no surprises, just honesty.
- Over 40 years of experience — helping Kiwis create homes they love.
- Accurate build timelines — so you always know what’s ahead.
Want to see the quality for yourself?
Visit our Park Green Showhome at 42 Evergreen Parade, Park Green, Karaka - open Tuesday to Sunday, 12pm–4pm.
See the finishes, the space and the craftsmanship in person, and imagine what we can build for you.
Package includes
- Signature Homes market-leading Building Guarantees
- Your choice of internal and external colours
- Fixed Price Guarantee
Floorplans: An Entertainers Delight. Park Green






Location
Lot 334, Stage 3A, Parkmore Drive, Park Green,
