




























Architectural Excellence in Casebrook
From $1,221,000
Kiekie Road, Casebrook, Christchurch City, Canterbury
Section size 546㎡
House size 202㎡
- Beds3
- Bathrooms2
- Receptions2
- Parking2
or email AdamBaylis@signature.co.nz
Visit Signature Homes Christchurch North
Enquire about this Package
Architectural Excellence in Casebrook
Kiekie Road, Casebrook, Christchurch City, Canterbury
Modern Pavilion Living in Casebrook
Elevate your lifestyle with this masterclass in architectural design. Perfectly positioned on a sun drenched 546sqm section in Casebrook’s newest enclave. Designed for those who value both connection and retreat, this 202sqm residence on Kie Kie Road offers a sophisticated "Pavilion" layout that balances striking street appeal with effortless everyday flow. Get in touch today to learn more about the specifications and our design and build process.
The Home: Architecture Meets Comfort
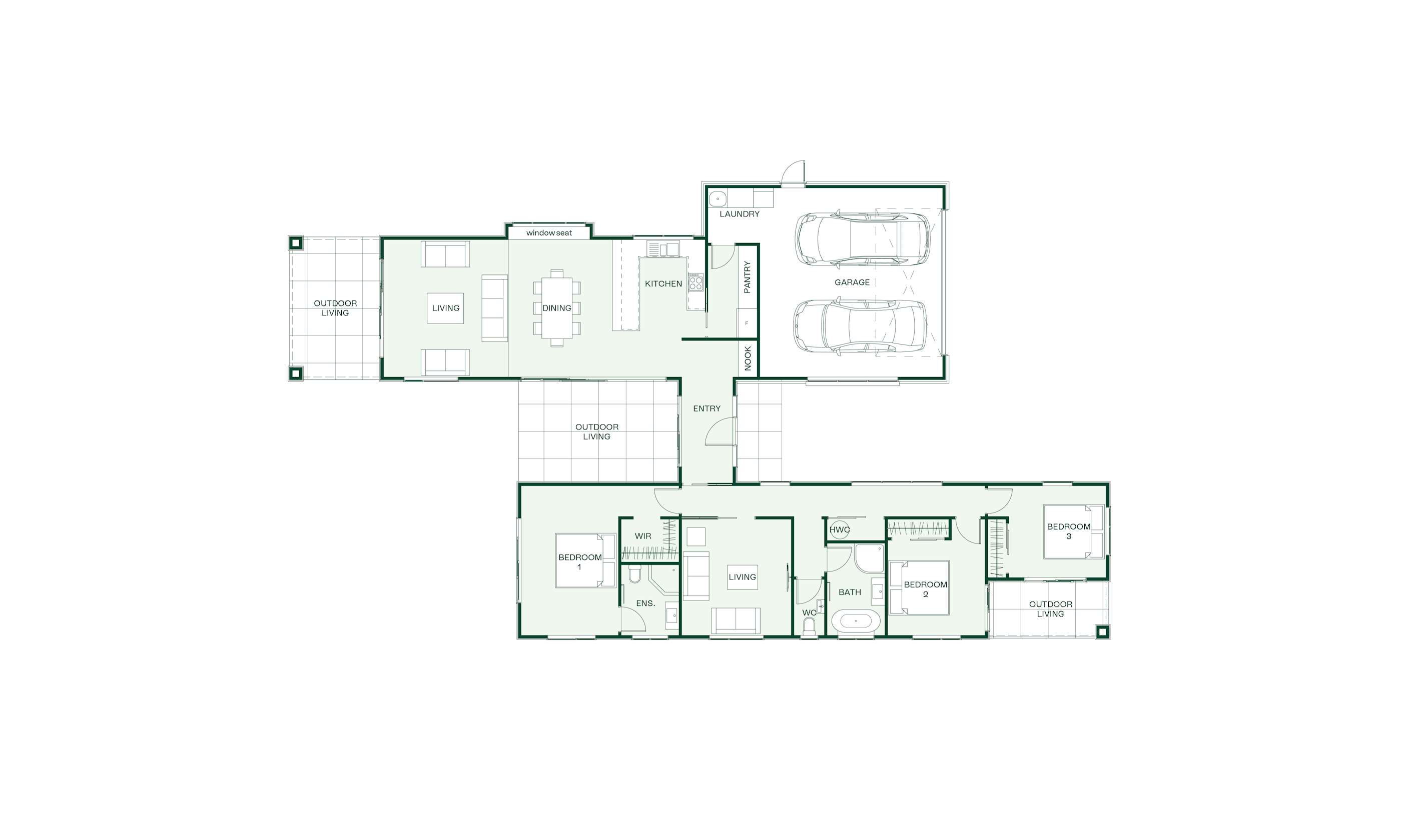
Whether it’s a quiet morning in the window seat or a summer evening hosting friends, the Richmond is built to adapt to your life.
- Sun Drenched Entry: A stunning glass lined entryway connects two distinct wings, naturally separating the social hubs from the private sleeping quarters.
- The Family Wing: The expansive open plan living and dining area is the heart of the home, featuring a clever study nook and a cozy window seat the perfect spot to unwind.
- Entertainment Without Limits: Flow effortlessly from the indoors to your private outdoor living spaces, designed to maximize the generous 546sqm footprint.
- Private Retreats: Three spacious double bedrooms, including a master suite that serves as a true sanctuary with its own luxury ensuite and walk-in robe.
Signature Plus Specs: Benefit from top tier interior and exterior specifications, ensuring your home feels premium in every corner.
The Location: A Natural Connection
Kie Kie Road is part of a master-planned vision that honours the area’s heritage while offering total modern convenience.
Recreation & Heritage: You’re just a stone’s throw from the Highsted Link Walkway, which leads you directly to the 57-hectare Styx Mill Conservation Reserve. Enjoy weekend strolls through native plantings or let the kids run wild at the nearby Tulett Park.
Education Excellence: Secure your family’s future with zoning for Casebrook Intermediate, Papanui High, and proximity to St Bede’s College and Cotswold Primary.
Coffee & shopping: Minutes from the retail hubs of NorthLink and Northlands Mall. For your morning fix, you’re perfectly placed to visit local favourites like Strange Bandit by Luciano.
Seamless Travel: Rapid access to the Northern Motorway and just 8 minutes to Christchurch Airport, with the CBD a comfortable 20 minute commute.
Our Signature Service Promise
At Signature Homes, we don't just build houses; we build certainty. Choose Christchurch's most trusted partner and receive:
- NZ’s Best Building Guarantees: Total peace of mind from floorplan to keys.
- Fixed-Price Guarantee: Transparent, accurate pricing with no "surprises."
- 40+ Years of Expertise: Leverage decades of experience in creating homes Kiwis love.
- Guaranteed Timelines: Move-in dates you can actually plan your life around.
Ready to see this all come to life?
Book your no-obligation new home workshop today and let’s customize this plan to suit your lifestyle.
Package includes
- Signature Homes market-leading Building Guarantees
- Your choice of internal and external colours
- Fixed Price Guarantee
Floorplans: Architectural Excellence in Casebrook



Location
Kiekie Road, Casebrook, Christchurch City, Canterbury


