











Big Dreams, Smart Start In Huapai
From $1,115,000
29 Babina Ave, Huapai Triangle, Auckland
Section size 215㎡
House size 173㎡
- Beds3
- Bathrooms2.5
- Receptions1
- Parking1
or email deanpritchard@signature.co.nz
Visit Signature Homes West & North-West Auckland
Enquire about this Package
Big Dreams, Smart Start In Huapai
29 Babina Ave, Huapai Triangle, Auckland
Embrace spacious modern living in this impressive 173m2 executive duplex, beautifully situated in the heart of the Huapai triangle. Construction is nearing completion; move in mid December.
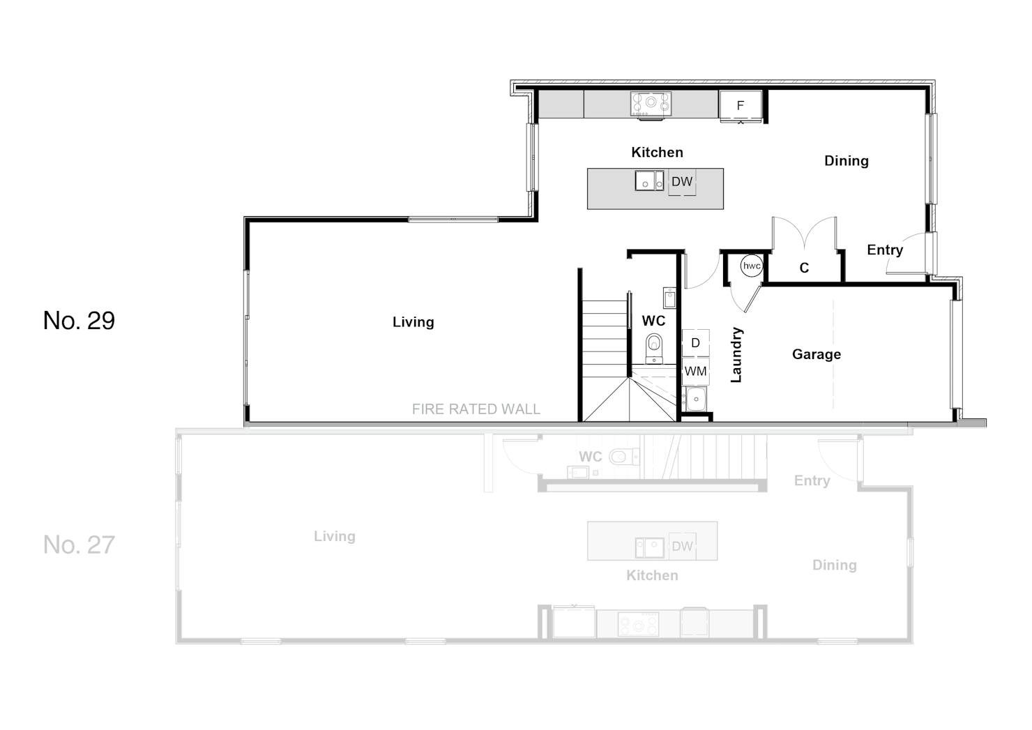
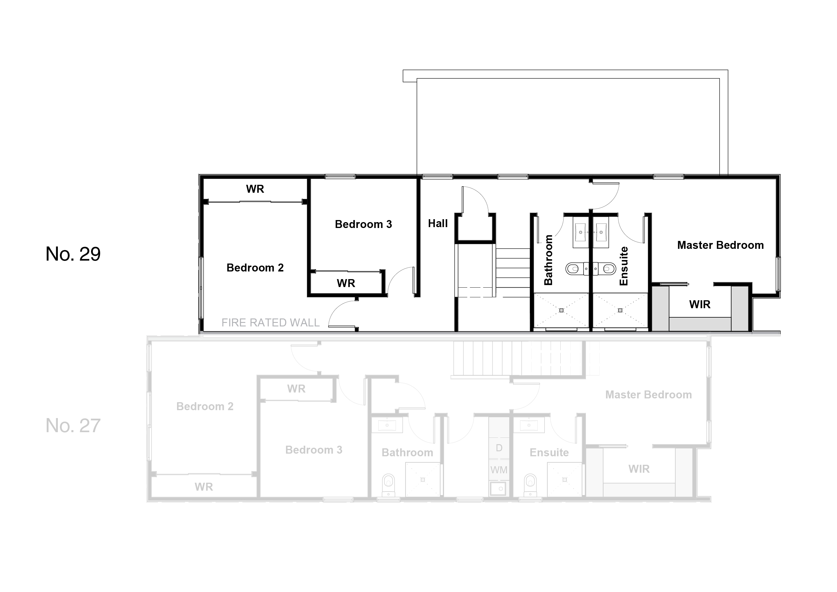
A thoughtfully planned space, representing security, and bespoke modern living. Three substantial bedrooms occupy the upper level, creating quiet retreats from the main living areas. Downstairs, the open plan kitchen seamlessly connects the living and dining areas, perfect for everyday life and entertaining guests. Two and a half bathrooms are strategically placed, while the internal access garage adds that extra layer of convenience. Year round comfort comes courtesy of the heatpump system.
The easy-care section is completed with professional landscaping. At $1,115,000 with all costs included, this represents excellent value whether you're starting out, upgrading, investing, or making a lifestyle change.
The Huapai triangle location puts you within walking distance of Huapai School and local amenities, while the pedestrian bridge connects you effortlessly to the main shopping precinct. The broader Kumeu area offers dining, outdoor adventures and services, plus the popular Huapai Country Club cafe sits just minutes away.
Signature Features:
- Low maintenance,173m2 executive duplex
- All inclusive pricing at $1,115,000 - land, house and site costs included
- Move in ready mid December
- 3 bedrooms, 2.5 bathrooms, internal access garage
Our Signature Service Promise:
We believe building your home should feel exciting, not stressful. That’s why when you choose Signature Homes, you’ll get:
- The best building guarantees in NZ – so you can build with total peace of mind
- The best service in the business – we’re with you every step of the way.
- Fixed pricing – no surprises, just honesty.
- Over 40 years of experience – helping kiwis create homes they love.
- Accurate build timelines – so you always know what’s ahead.
Ready to invest in your future? Contact Signature Homes West & North-West Auckland today and let us show you where to begin.
Package includes
- The best building guarantees in NZ – so you can build with total peace of mind
- The best service in the business – we’re with you every step of the way.
- Fixed pricing – no surprises, just honesty.
- Over 40 years of experience – helping kiwis create homes they love.
- Accurate build timelines – so you always know what’s ahead.
Floorplans: Big Dreams, Smart Start In Huapai






Location
29 Babina Ave, Huapai Triangle, Auckland


