















Build Brand New with Signature Homes in Brymer Heights
From $967,065
Lot 100 9 Horseshoe Terrace, Baverstock
Section size 356㎡
House size 136㎡
- Beds3
- Bathrooms2
- Parking1
Enquire about this Package
Build Brand New with Signature Homes in Brymer Heights
Lot 100 9 Horseshoe Terrace, Baverstock
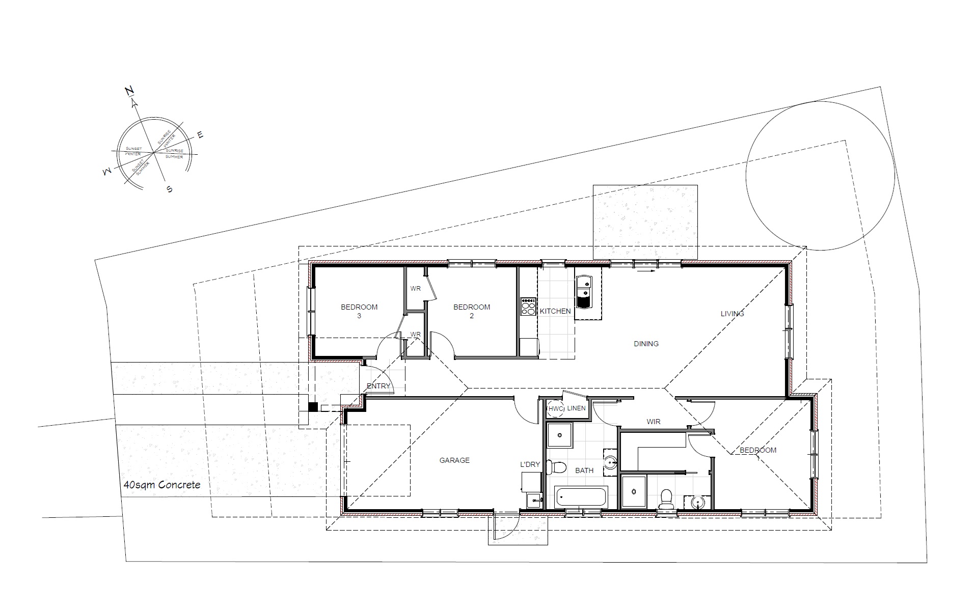
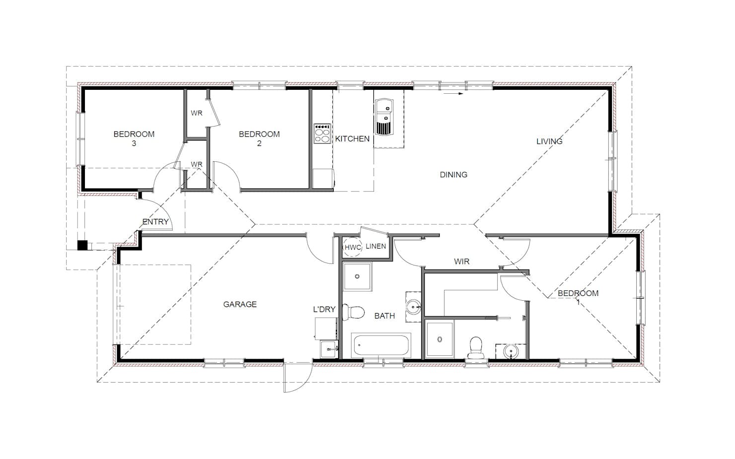
Build Brand New in the Breathtaking Brymer Heights. Just minutes from The Base and all the convenience that Te Rapa has to offer. Brymer Heights is a great spot to call home with unbeatable views and a real sense of community.
This low maintenance 3 Bedroom home offers a clever layout, great for first home buyers or those looking to downsize. The elevated section boasts easterly views over to the wetlands and surrounding area, so contact our team today so arrange a site visit and to dicsuss this package in more detail.
This House & Land Package Includes:
- 356m2 Section
- 136m2 Home
- 3 Bedrooms
- 2 Bathrooms
- Open plan Kitchen, Dining, Living
- Heatpump
- Clothesline
- Fencing
- Exterior Concrete
- Letterbox
- Hydro-seeded Lawns
- Landscaping allowance
*Images are an artist’s impression
Our Market Leading Guarantees
At Signature Homes we offer independently bonded Building Guarantees for complete cover and protection for our clients' investments during the build and long after we have handed over the keys.
Package includes
- Signature Homes market-leading Building Guarantees
- Your choice of internal and external colours
- Fixed Price Guarantee
Floorplans: Build Brand New with Signature Homes in Brymer Heights




Location
Lot 100 9 Horseshoe Terrace, Baverstock
