











Build Modern Comfort in Kotare Heights - Lot 54
From $820,000
Lot 54, 540 Korimako Drive, Te Awamutu
Section size 515㎡
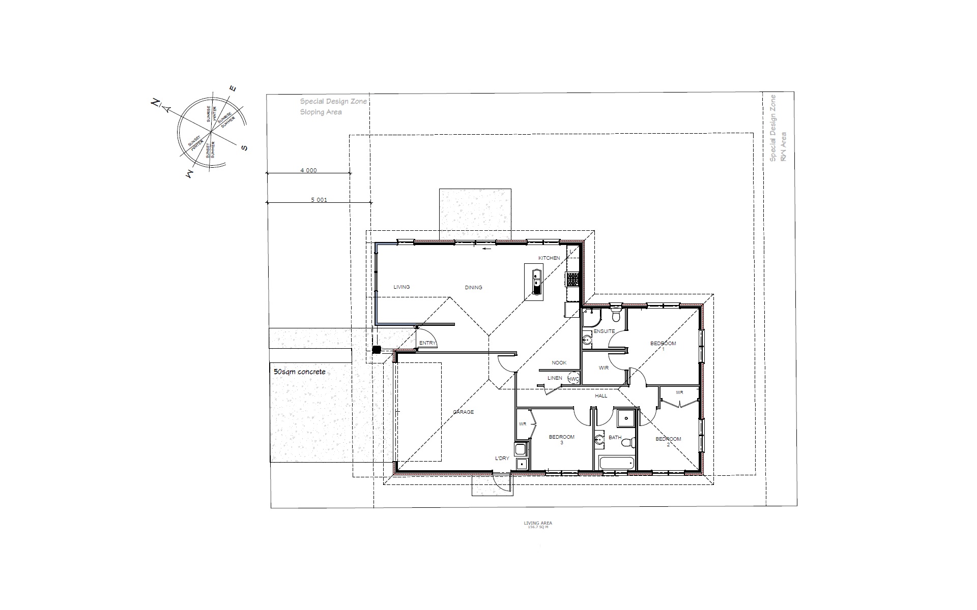
House size 156㎡
- Beds3
- Bathrooms2
- Receptions1
- Parking2
Enquire about this Package
Build Modern Comfort in Kotare Heights - Lot 54
Lot 54, 540 Korimako Drive, Te Awamutu
Nestled in the elevated and family-friendly Kotare Heights community is the opportunity to build this 3-bedroom 2-bathroom home.
Discover the best of Te Awamutu living, with scenic wetlands at Lake Ngaroto and Lake Serpentine just moments away, the extraordinary native wildlife of Sanctuary Mountain Maungatautari within easy reach, and the tranquil beauty of Alphra Lavender Farm close by.
An exceptional opportunity to secure a quality home in one of the town’s most desirable new neighbourhoods.
This house & land package is yet to be built, giving you the chance to select your colours whilst working with our colour consultant.
This House and Land Package includes:
- 515m2 section.
- 156m2 home
- 3 Bedroom
- 2 Bathroom
- Open plan Kitchen, Dining, Living
- Heat pump
- Clothesline
- Fencing
- Exterior Concrete
- Letterbox
- Hydro-seeded Lawns
Images of the home is an artist's impression
Our Market Leading Guarantees At Signature Homes we offer independently bonded Building Guarantees for complete cover and protection for our clients' investments during the build and long after we have handed over the
Package includes
- Signature Homes market-leading Building Guarantees
- Your choice of internal and external colours
- Fixed Price Guarantee
Floorplans: Build Modern Comfort in Kotare Heights - Lot 54




Location
Lot 54, 540 Korimako Drive, Te Awamutu
