











Downsizer's Dream
From $699,000
109 Marsh Avenue, Lockerbie Estate
Section size 248㎡
House size 121㎡
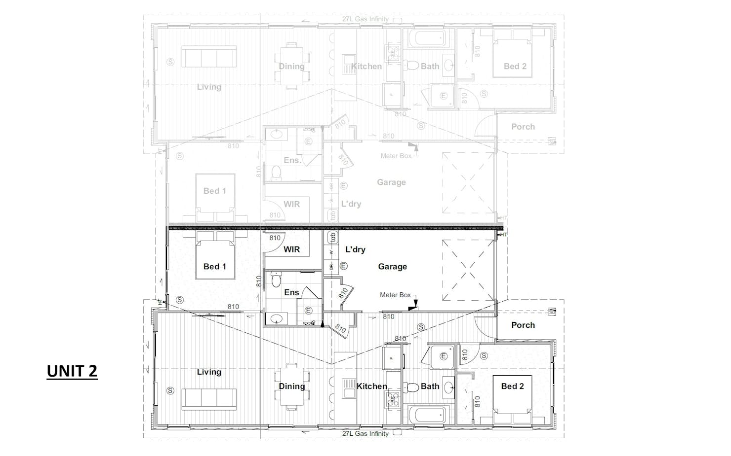
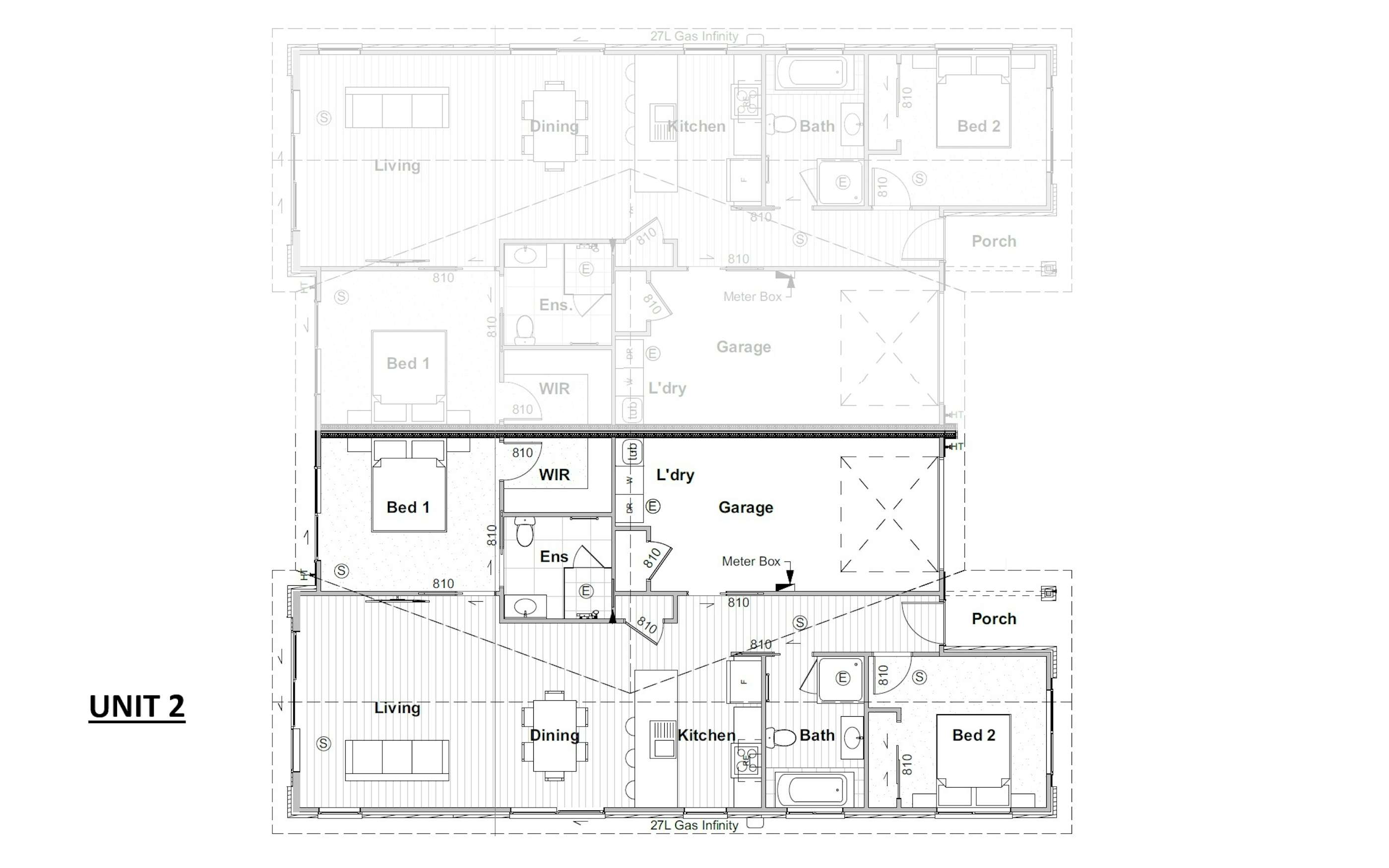
- Beds2
- Bathrooms2
- Receptions1
- Parking1
Enquire about this Package
Downsizer's Dream
109 Marsh Avenue, Lockerbie Estate
The frames are up
This stylish home has everything you need and more! Sitting on a 248m² freehold section with a 121m² home, it features 2 bedrooms and 2 bathrooms, perfect for easy, modern living. Due for completion April 2026
Enjoy an open-plan kitchen, living, and dining area with a custom Mastercraft kitchen, stone benchtop and splashback, and sleek brushed nickel tapware. The tiled ensuite shower adds a touch of luxury, while extras like curtains, garage carpet, clothesline, fencing, hydro-seeded lawns, and exterior concrete make moving in a breeze.
Just 30 minutes’ drive from Hamilton, with ample amenities, parkland and open space, Lockerbie Estate is a convenient and family friendly location for all to enjoy.
There is still time to make some limited colour changes, enquire now!
*Images are the artists impression
Our Market Leading Guarantees
At Signature Homes we offer independently bonded Building Guarantees for complete cover and protection for our clients' investments during the build and long after we have handed over the keys.
Package includes
- Signature Homes market-leading Building Guarantees
- Fixed Price Guarantee
Floorplans: Downsizer's Dream




Location
109 Marsh Avenue, Lockerbie Estate
