








































Elevated Section with Views. What more could you want!
From $1,780,530
Lot 335, Stage 3A, Parkmore Drive, Park Green
Section size 371㎡
House size 256㎡
- Beds4
- Bathrooms3
- Receptions2
- studies1
- Parking2
or email TamsinRedington@signature.co.nz
Visit Signature Homes Papakura & Franklin
Enquire about this Package
Elevated Section with Views. What more could you want!
Lot 335, Stage 3A, Parkmore Drive, Park Green
Exceptional Family Living in the Heart of Park Green
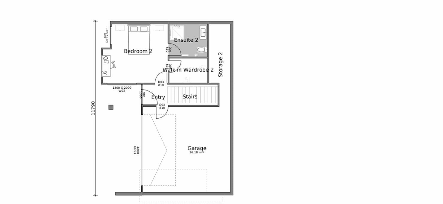
Situated of Parkmore Drive, this home has four double bedrooms, three bathrooms, study, a separate laundry, an open plan kitchen, dining, lounge, plus a living/media room - an ideal home for large families or those looking for more space.
Park Green is a beautiful new community known for its wide green spaces, peaceful coastal estuary, and modern, family-friendly design. With walkways, cycle paths, parks, and planned amenities, it offers a calm and refreshing lifestyle. Located approximately 30 minutes south of Auckland’s CBD, nestled between Karaka and Drury, Park Green provides easy access to SH1 via the Drury interchange as well as Great South Road—ideal for commuters and families alike.
Signature Features
- Four double bedrooms
- Three bathrooms (2 ensuites)
- Two car garage
- Study
- Separate laundry
- Open plan kitchen, dining, plus a breakfast nook
- Lounge, plus a living/media room
- Driveway, patio, paving, landscaping & fencing
This the ideal home for large families or those lookingfor more space.
Our Signature Service Promise
We believe building your home should feel exciting, not stressful. That’s why when you choose Signature Homes, you’ll get:
- The best building guarantees in NZ — so you can build with total peace of mind.
- The best service in the business — we’re with you every step of the way.
- Transparent, accurate pricing — no surprises, just honesty.
- Over 40 years of experience — helping Kiwis create homes they love.
- Accurate build timelines — so you always know what’s ahead.
Ready to stop dreaming and start building?
Contact Signature Homes Papakura & Franklin today and let’s turn your vision into your front-door key.
All house and land packages are fully customisable and can be tailored to suit your lifestyle and needs. Final home appearance may vary based on design choices. Price is subject to engineering and final design requirements.
Package includes
- Signature Homes market-leading Building Guarantees
- Your choice of internal and external colours
- Fixed Price Guarantee
Floorplans: Elevated Section with Views. What more could you want!





Location
Lot 335, Stage 3A, Parkmore Drive, Park Green
Recommended properties

Build your Dream Home - 100% Fixed Price Contract, in Park Green!
- Beds4
- Bathrooms2.5
- Receptions2
- Parking2
- Suburb:
- From $1,792,792

Executive Living in Park Green, Karaka - 100% Fixed Price
- Beds4
- Bathrooms2
- Receptions1
- Parking2
- Suburb:
- From $1,560,416

100% Fixed Price in Park Green!
- Beds4
- Bathrooms2
- Receptions1
- Parking1
- Suburb:
- From $1,564,128


