





































Milldale Dual Income - 4 Beds + Legal Minor!
From $1,699,000
Lot 1206, Te Taruna Drive, Milldale
Section size 525㎡
House size 234㎡
- Beds6
- Bathrooms3
- Receptions2
- Parking2
or email trishday@signature.co.nz
Visit Signature Homes Rodney & North Shore
Enquire about this Package
Milldale Dual Income - 4 Beds + Legal Minor!
Lot 1206, Te Taruna Drive, Milldale
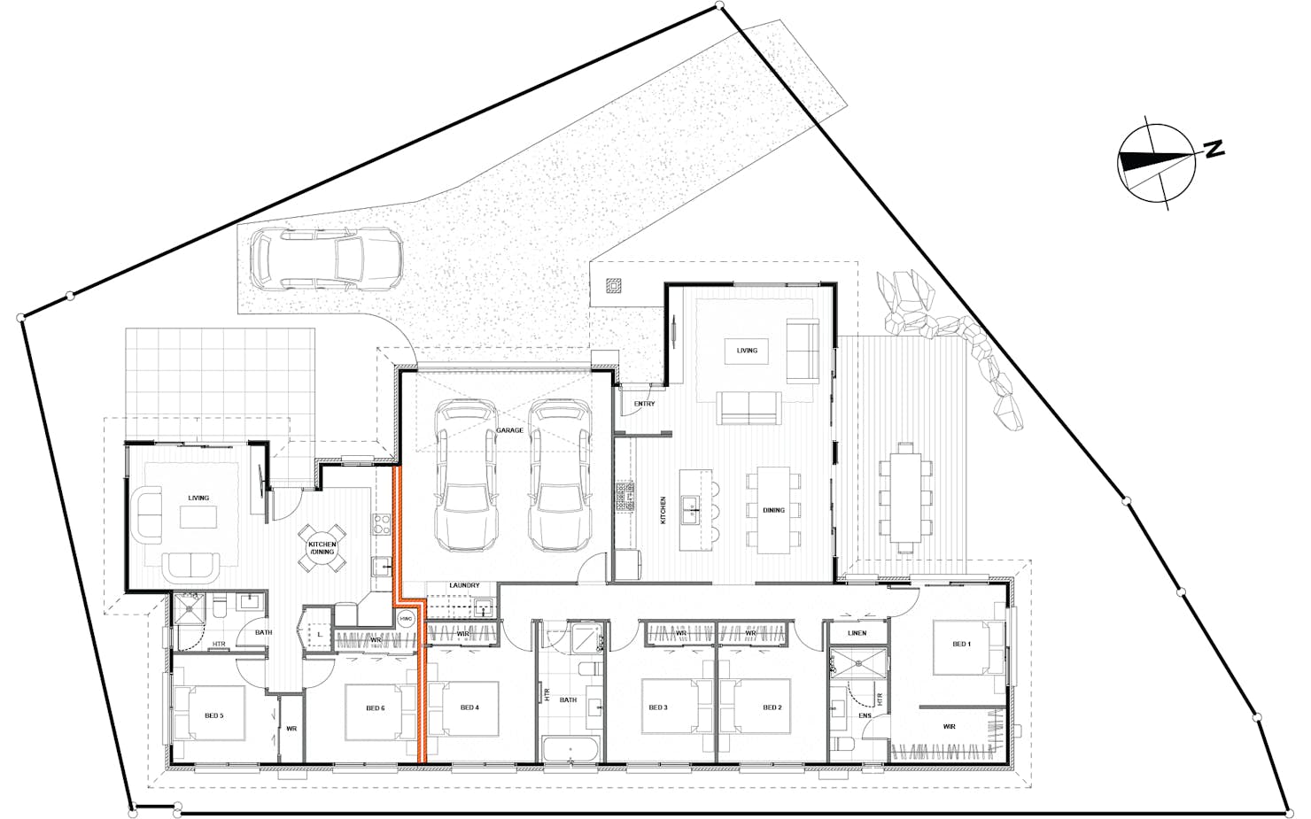
Discover an exceptional opportunity with this architecturally designed, single-level legal home and minor dwelling at Lot 1206, Milldale. The main residence boasts four generously sized double bedrooms, including a spacious and private master suite complete with an ensuite, walk-in wardrobe, and deck access. A custom-designed kitchen forms the heart of the open-plan living and dining area, seamlessly extending onto a large north-facing deck. The versatile, self-contained minor dwelling offers outstanding flexibility, featuring its own kitchen, living area, two spacious bedrooms, laundry, full bathroom, and patio - perfect for extended family, visiting guests, or as an investment opportunity.
With a combined potential rental income of $1,600 – $1,750 per week, this is an ideal opportunity for investors or homeowners seeking additional income. Now is the perfect time to secure your brand-new home and begin your journey with Signature Homes.
Lot 1206 is ideally located just a short stroll from the future Parkland Loop greenspace and Milldale’s upcoming town centre. Nestled between the well-established communities of Orewa, Millwater, Wainui, Dairy Flat, and Silverdale, Milldale offers a connected and convenient lifestyle. Enjoy easy access to Ahutoetoe School, the future town centre, and lush green spaces - all just minutes from your doorstep.
Feature included:
- Architecturally designed, single-level home
- Four generous double bedrooms
- Spacious master suite with ensuite, walk-in wardrobe & deck access
- Open-plan kitchen, living & dining area
- Custom-designed kitchen
- Heat Pump to the living area in both homes
- North facing outdoor living on timber
- Self-contained minor dwelling with seperate concrete patio
- Double car garage with laundry
- Dedicated car park for the minor house
- Excludes Landscaping, Fencing, Vector Pit upgrade (power), Development contributions for home and income.
Renders are for illustrative purposes only and are intended as an artist’s impression. This rental appraisal is based on online photos and publicly available market data at the time. It reflects an informed opinion and is not a guarantee of rental income. Rental values may fluctuate due to market conditions
Package includes
- Signature Homes market-leading Building Guarantees
- Your choice of internal and external colours
- Fixed Price Guarantee
Floorplans: Milldale Dual Income - 4 Beds + Legal Minor!




Location
Lot 1206, Te Taruna Drive, Milldale
