























Perfect Place for your Next Home in Moturoa
From $827,176
349 St Aubyn Street
Section size 276㎡
House size 125㎡
- Beds3
- Bathrooms2
- Receptions1
- Parking1
or email stephaniewood@signature.co.nz
Visit Signature Homes Taranaki
Enquire about this Package
Perfect Place for your Next Home in Moturoa
349 St Aubyn Street
Your Signature package, made easy
Purchase this package in a perfect location. This is a quaint but spacious 3 bedroom home, situated on flat sections within walking distance to central New Plymouth and local shops, beach, aquatic centre and the coastal walkway. With a handy bus stop a few footsteps away, you can't get better than this. Also close to schools, and not that far from the Hospital either.
Perfect for professionals, semi-retired, young couple or small family who want a low-maintenance home that is in central proximity to amenities.
347 St Aubyn St, Moturoa is also available. Both house and land packages are priced under $850,000, you can’t get a better deal than this!
Contact Stephanie today to discuss the plans available for these sites and other options.
Our Signature Service Promise
We believe building your home should feel exciting, not stressful. That’s why when you choose Signature Homes, you’ll get:
- The best building guarantees in NZ — so you can build with total peace of mind
- The best service in the business — we’re with you every step of the way
- Transparent, accurate pricing — no surprises, just honesty
- Over 40 years of experience — helping Kiwis create homes they love
- Accurate build timelines — so you always know what’s ahead
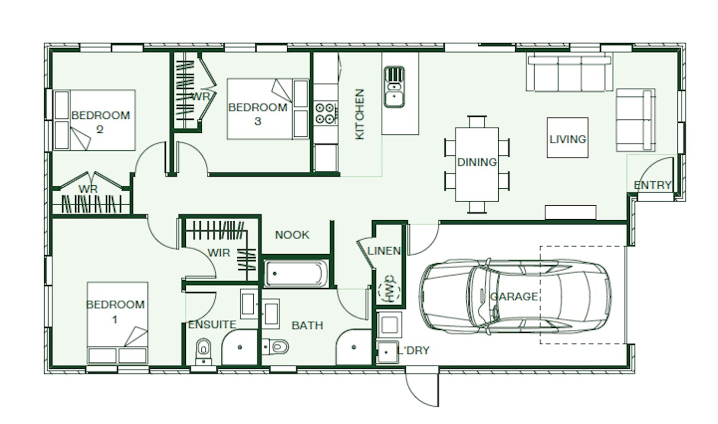
Package includes
- 3 double bedrooms
- Brick cladding
- Bathroom & ensuite
- Master Bedroom with walk-in robe
- Galley kitchen with open plan dining/living
- Tiled kitchen splashback
- Internal access single garage
- Hi-wall heat pump
- Ventilation system
- Roller blinds
- Floor coverings
- Your choice of internal and external colours
- Timber paling fence
- Concrete driveway/path and patio
- Services included
- Earthworks, subject to due diligence
Floorplans: Perfect Place for your Next Home in Moturoa




Location
349 St Aubyn Street
