

















Sophisticated Living, Ready for your touch - Lot 20
From $1,865,000
55 Te Mara Drive, Cambridge.
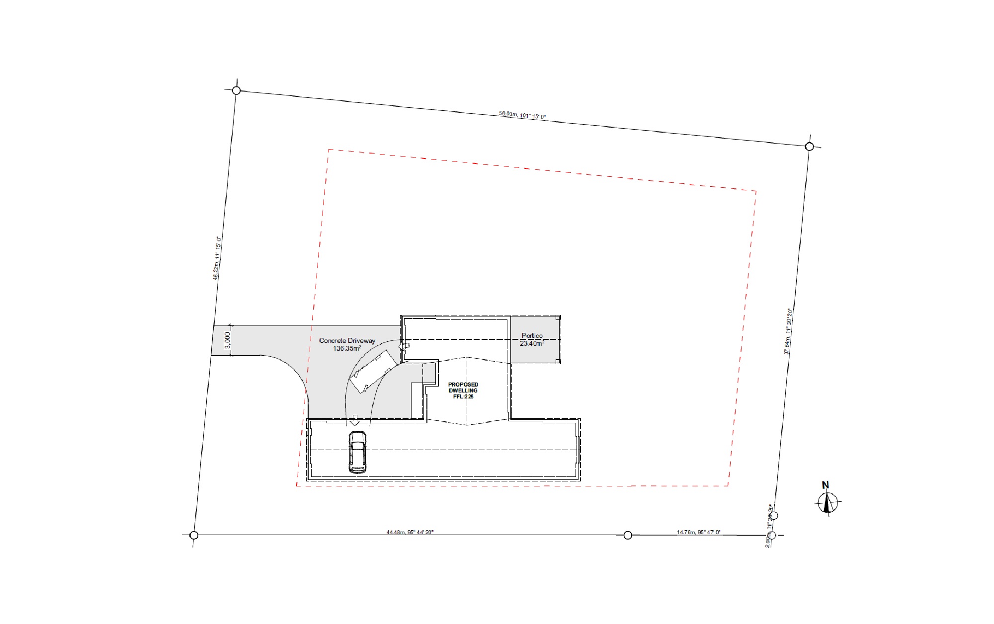
Section size 2500㎡
House size 270㎡
- Beds4
- Bathrooms2
- Receptions2
- studies1
- Parking2
Enquire about this Package
Sophisticated Living, Ready for your touch - Lot 20
55 Te Mara Drive, Cambridge.
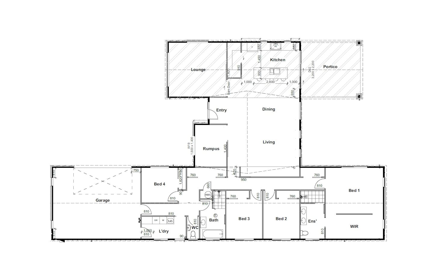
An exceptional opportunity to secure a premium house and land package, designed with quality, style, and modern living in mind. This thoughtfully planned four-bedroom, two-bathroom home with two living areas, and a dedicated office offers the perfect balance of luxury and functionality.
This home has not been built yet, there is still time to add to this plan and make your own mark.
Designed for effortless living and entertaining, the home centres around a spacious open-plan kitchen, dining, and living area, complemented by a separate lounge for added flexibility and space. Premium finishes and high-quality fixtures are planned throughout, ensuring a home that feels refined, comfortable, and built to an exceptional standard.
The master suite is designed as a private retreat with a well-appointed ensuite and wardrobe, while three additional bedrooms are generously sized and serviced by a stylish family bathroom. The separate office provides the ideal work-from-home space without compromising living areas.
Set on a quality section in a desirable location, this house and land package offers the chance to secure a brand-new, high-spec home with the opportunity to add your own touches and make it truly yours.
Reach out today and we can walk you through the process of building your dream home.
What's included?
- 270sqm of premium living space on a 2500sqm lifestyle section
- 4 Bedrooms
- 2 Bathrooms
- Open plan Kitchen, Dining, Living with second Living
- Master Craft Designer Kitchen with stone bench top
- Fisher and Paykel Appliances
- Heat pump
- Exterior Concrete
- Clothesline & Letterbox
- Exterior painted fencing
Read more
Package includes
- Signature Homes market-leading Building Guarantees
- Your choice of internal and external colours
- Fixed Price Guarantee
Floorplans: Sophisticated Living, Ready for your touch - Lot 20




Location
55 Te Mara Drive, Cambridge.
