

























Space, comfort and connection in Halswell
From $852,000
9 Kearns Drive, Halswell
Section size 458㎡
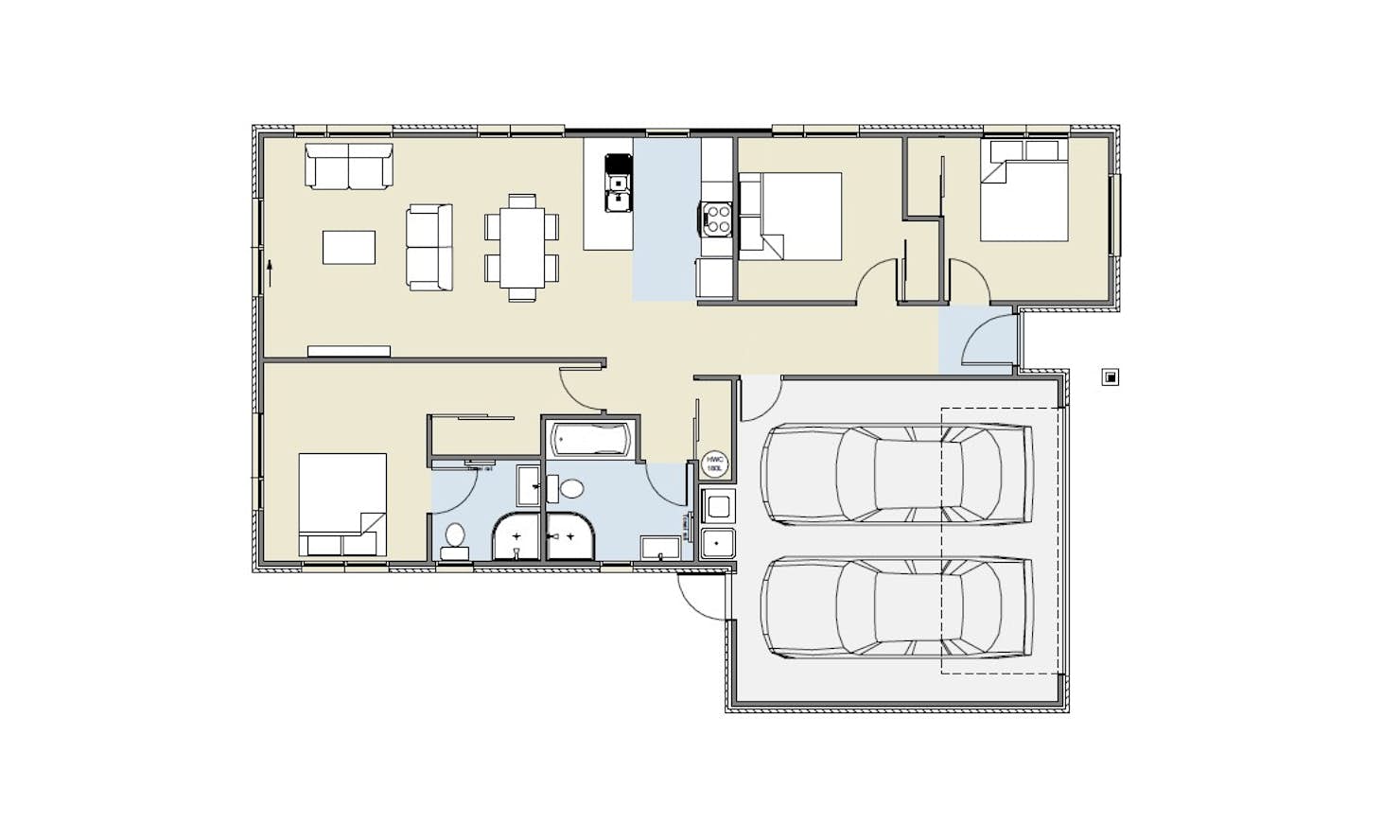
House size 142㎡
- Beds3
- Bathrooms2
- Receptions1
- Parking2
or email debbieryan@signature.co.nz
Visit Signature Homes Christchurch South
Enquire about this Package
Space, comfort and connection in Halswell
9 Kearns Drive, Halswell
Your Signature package, made easy
Your chance to secure a modern 142sqm three-bedroom, two bathroom, double garage home located in Milns Park, Halswell, a great home for those seeking a move to the popular Halswell
Signature features:
- Land titled, no delays
- Sharply priced, this won't last long!
- Close to local amenities and upcoming shopping centre "The Acres"
This is a corner site with fantastic views of the Port Hills! Your home is sited to make the most of the sun
Our Signature Service Promise
We believe building your home should feel exciting, not stressful. That’s why when you choose Signature Homes, you’ll get:
- The best building guarantees in NZ - so you can build with total peace of mind.
- The best service in the business - we’re with you every step of the way.
- Fixed pricing - no surprises, just honesty. Over 40 years of experience - helping Kiwis create homes they love.
- Accurate build timelines - so you always know what’s ahead.
Package includes
- Signature Homes market-leading Building Guarantees
- Your choice of internal and external colours
- Fixed Price Guarantee
Floorplans: Space, comfort and connection in Halswell




Location
9 Kearns Drive, Halswell


