


























The Perfect 5-Bedroom Family Home in Paerata Rise
From $1,224,485
9 Manatika Road, Karaka
Section size 475㎡
House size 178㎡
- Beds5
- Bathrooms2
- Receptions2
- Parking2
or email darylgoodwin@signature.co.nz
Visit Signature Homes Papakura & Franklin
Enquire about this Package
The Perfect 5-Bedroom Family Home in Paerata Rise
9 Manatika Road, Karaka
Fixed Price Family Living in Paerata Rise
A spacious five-bedroom home designed for modern family living.
With 178m² of well-planned space, this home offers comfort, practicality and quality finishes throughout. The open-plan kitchen, dining and living area creates a practical central space for everyday living. The designer kitchen features Fisher & Paykel appliances and a functional layout designed for easy, everyday use.
This 100% fixed price house and land package offers confidence and clarity, with high-quality finishes and Signature Homes specifications.
Life in Paerata Rise
Located between Karaka and Pukekohe, Paerata Rise is a fast-growing master-planned community designed for easy family living.
The neighbourhood features parks, playgrounds, walking and cycling paths, creating a relaxed environment where families can enjoy the outdoors and connect with their community.
Families benefit from excellent schooling options and early childhood centres nearby, while Pukekohe town centre is just minutes away for supermarkets, cafés and everyday amenities.
Future plans for the area include retail spaces and a new Paerata train station, making commuting to Auckland even easier.
House & Land Package includes
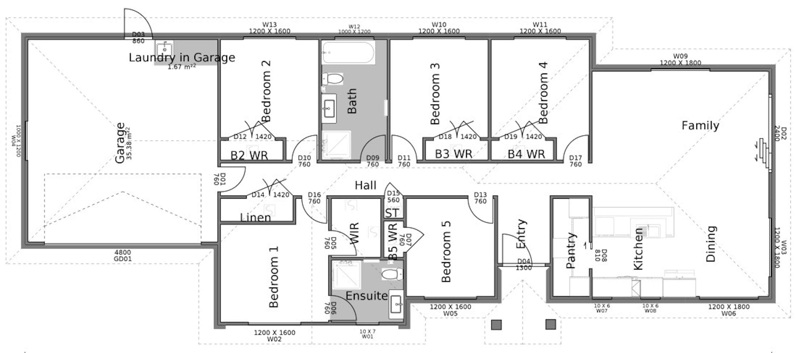
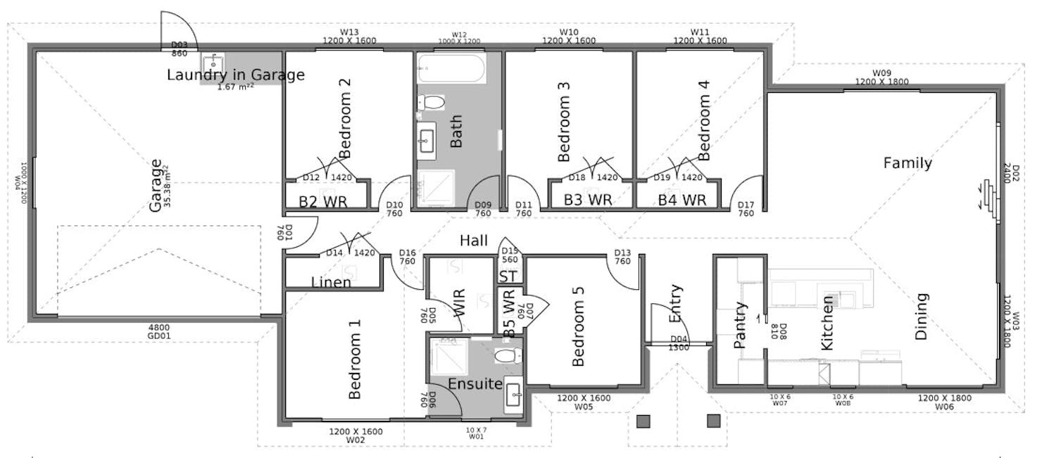
- 178m² of internal living
- 475m² north-facing land
- 100% Fixed Price
- Double garage
- Five bedrooms including master suite with walk-in wardrobe & ensuite
- Heat pump
- Designer kitchen with Fisher & Paykel appliances
- Premium Signature Homes specifications
- Wide range of interior selections and finishes
- Topsoil, grass seed and some planting
- Includes Infrastructure Growth Charge (IGC)
Our Signature Service Promise
Building your home should be an exciting and enjoyable experience. When you build with Signature Homes, you receive:
- Industry-leading building guarantees
- A dedicated team supporting you through the process
- Transparent pricing and clear timelines
- Over 40 years of experience building homes across New Zealand
Visit our Paerata Rise Showhome
32 Te Rātā Boulevard, Paerata Rise
Open daily 11am – 4pm
Package includes
- Signature Homes market-leading Building Guarantees
- Your choice of internal and external colours
- Fixed Price Guarantee
Floorplans: The Perfect 5-Bedroom Family Home in Paerata Rise



Location
9 Manatika Road, Karaka
Recommended properties

Get Into the Market in Paerata Rise from $999K
- Beds3
- Bathrooms2
- Receptions1
- Parking2
- Suburb:
- From $999,435

Find Your Home in Paerata Rise – Fixed Price
- Beds4
- Bathrooms2
- Receptions1
- Parking2
- Suburb:
- From $1,133,419

Stylish Family Living in Paerata Rise – 100% Fixed Price
- Beds4
- Bathrooms2
- Receptions1
- Parking2
- Suburb:
- From $1,125,937


