











































Views, views, views. Paerata Rise - 100% Fixed Price!
From $1,458,710
9 Tirikatene Avenue, Paerata Rise
Section size 460㎡
House size 212㎡
- Beds4
- Bathrooms3.5
- Receptions1
- Parking2
or email darylgoodwin@signature.co.nz
Visit Signature Homes Papakura & Franklin
Enquire about this Package
Views, views, views. Paerata Rise - 100% Fixed Price!
9 Tirikatene Avenue, Paerata Rise
A spacious family home designed for modern living in Paerata Rise
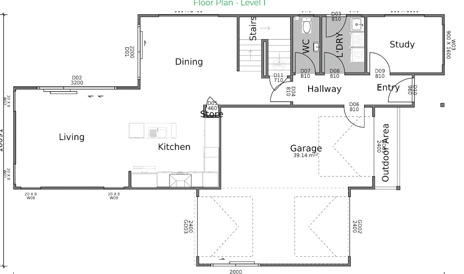
The Hobsonville is a well-designed family home with plenty of space for modern living. With four generous bedrooms and three bathrooms, including two private ensuites, there’s plenty of room for everyone to enjoy their own space while still coming together in the heart of the home.
Life in Paerata Rise
Paerata Rise has become the lifestyle choice for many families, thanks to its beautiful surroundings, strong sense of community and convenient location. Positioned between Karaka and Pukekohe, this master-planned neighbourhood offers the perfect balance of peaceful living and everyday convenience.
Loved by many for its family-friendly feel, Paerata Rise is a place where parks, green spaces, walking paths and quality schooling options all come together to create a community people are proud to call home. With Woolworths coming to the development and the new Paerata train station opening soon, Paerata Rise is becoming even more convenient for families. It’s a vibrant, welcoming community that offers an exceptional lifestyle for families looking to settle in a well-connected and fast-growing area.
House & Land Package includes
- 212m² of internal living
- 450m² of north-facing land
- Double garage
- Four generous bedrooms
- Three bathrooms, including 2 ensuites
- Heat pump
- Designer kitchen with Fisher & Paykel appliances
- Separate laundry
- Topsoil, grass seed and some planting
Our Signature Service Promise
Building your home should be an exciting and enjoyable experience. When you build with Signature Homes, you receive:
- Industry-leading building guarantees
- A dedicated team supporting you through the process
- Transparent pricing and clear timelines
- Over 40 years of experience building homes across New Zealand
Ready to take the next step?
Contact Signature Homes Papakura & Franklin today and let’s help bring your new home to life.
All house and land packages are fully customisable and can be tailored to suit your lifestyle and preferences. Final home appearance may vary depending on design selections. Pricing may be subject to engineering and final design requirements.
Visit our Paerata Rise Showhome
32 Te Rātā Boulevard, Paerata RiseOpen daily 11am – 4pm
Package includes
- Signature Homes market-leading Building Guarantees
- Your choice of internal and external colours
- Fixed Price Guarantee
Floorplans: Views, views, views. Paerata Rise - 100% Fixed Price!






Location
9 Tirikatene Avenue, Paerata Rise
Recommended properties

The Perfect 5-Bedroom Family Home in Paerata Rise
- Beds5
- Bathrooms2
- Receptions2
- Parking2
- Suburb:
- From $1,224,485

Stylish Family Living in Paerata Rise – 100% Fixed Price
- Beds4
- Bathrooms2
- Receptions1
- Parking2
- Suburb:
- From $1,125,937

Find Your Home in Paerata Rise – Fixed Price
- Beds4
- Bathrooms2
- Receptions1
- Parking2
- Suburb:
- From $1,133,419
