












Your New Family Home in Kenepuru - Lot 334
From $972,968
Lot 334/2 Upper Main Drive, Kenepuru, Porirua
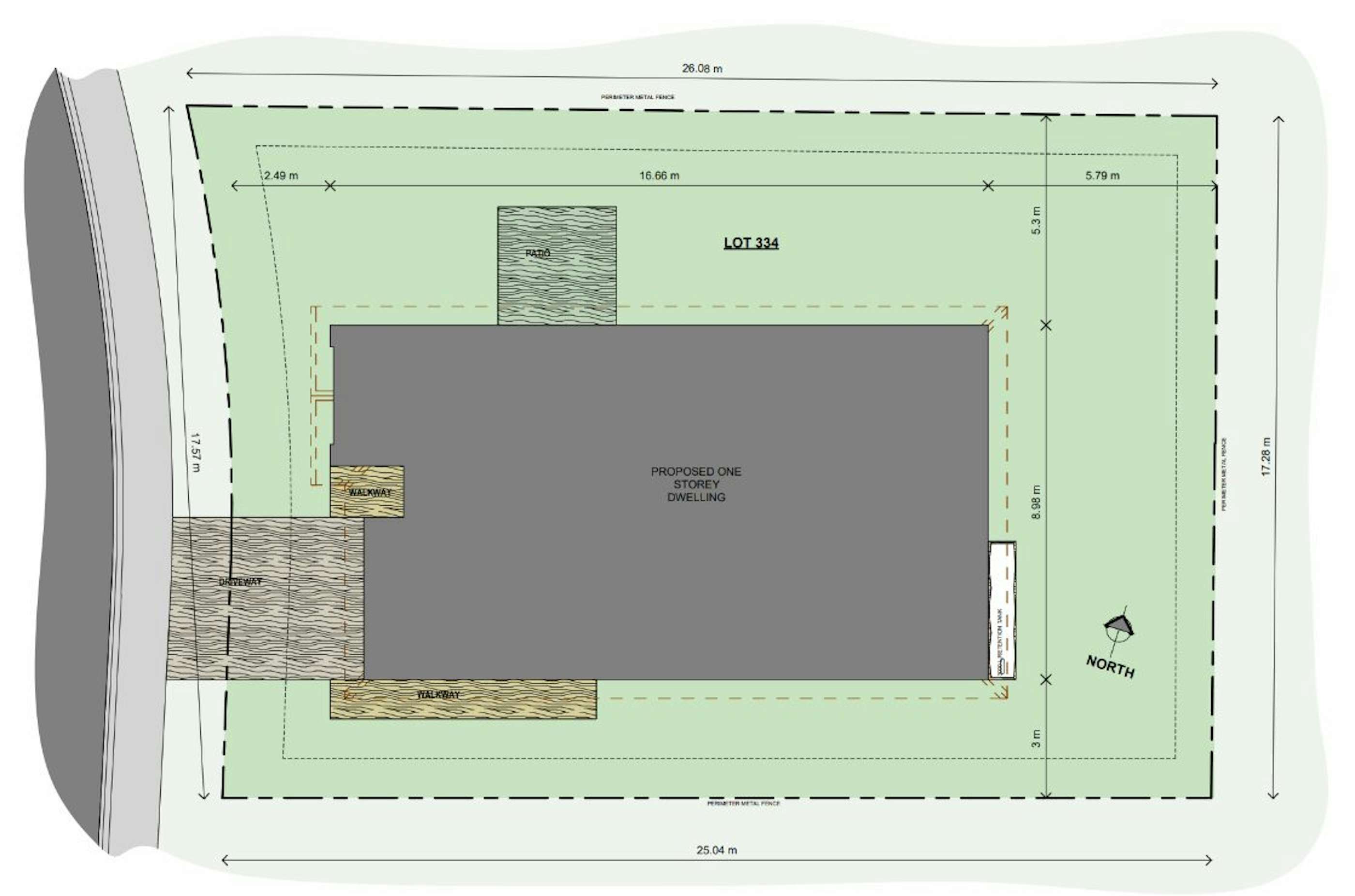
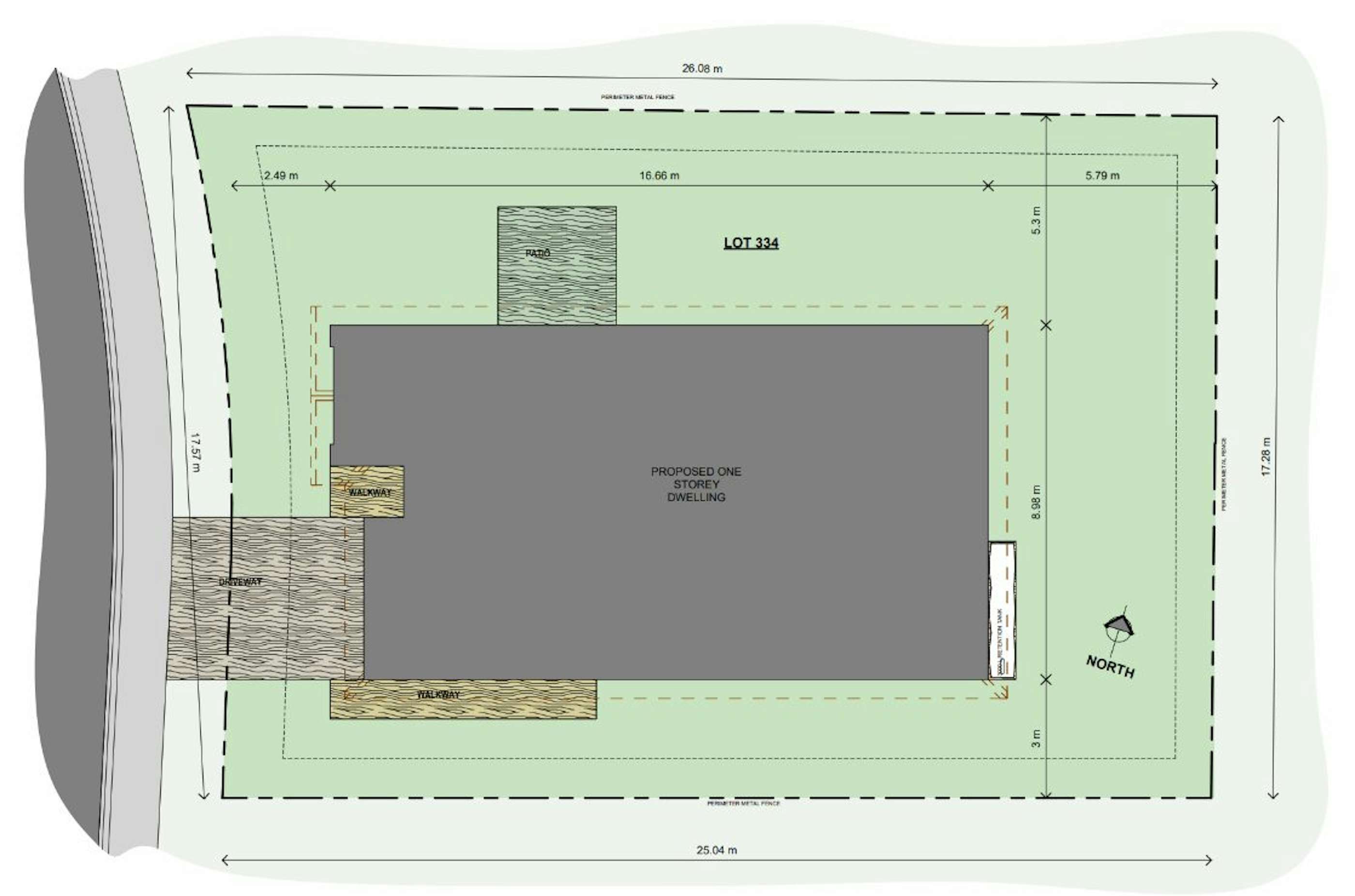
Section size 437㎡
House size 143㎡
- Beds4
- Bathrooms2
- Receptions1
- Parking1
or email sophiebrown@signature.co.nz
Visit Signature Homes Greater Wellington
Enquire about this Package
Your New Family Home in Kenepuru - Lot 334
Lot 334/2 Upper Main Drive, Kenepuru, Porirua
Your new home awaits on the highly sought-after Kenepuru Landing Development. This House & Land package sits on Lot 334 with a generous 437m2 section size.
This plan is a family favourite. It features 4 bedrooms (including a master with ensuite), an internal access single garage, and a beautiful kitchen with plenty of bench space and a ranch slider leading to a patio.
Transportation is a breeze with nearby bus and train stops, easy access to Transmission Gully Link Road, and a short drive to both Tawa and Porirua City centres.
Don't miss out on this opportunity to secure this home, call Sophie Brown on 027 700 0789 today!
Package includes
- Signature Homes market-leading Building Guarantees
- Your choice of internal and external colours
- Fixed Price Guarantee
Floorplans: Your New Family Home in Kenepuru - Lot 334





Location
Lot 334/2 Upper Main Drive, Kenepuru, Porirua


