










Signature Homes Karaka Minor Dwelling House Plan
Introducing the Signature Homes Karaka Minor Dwelling
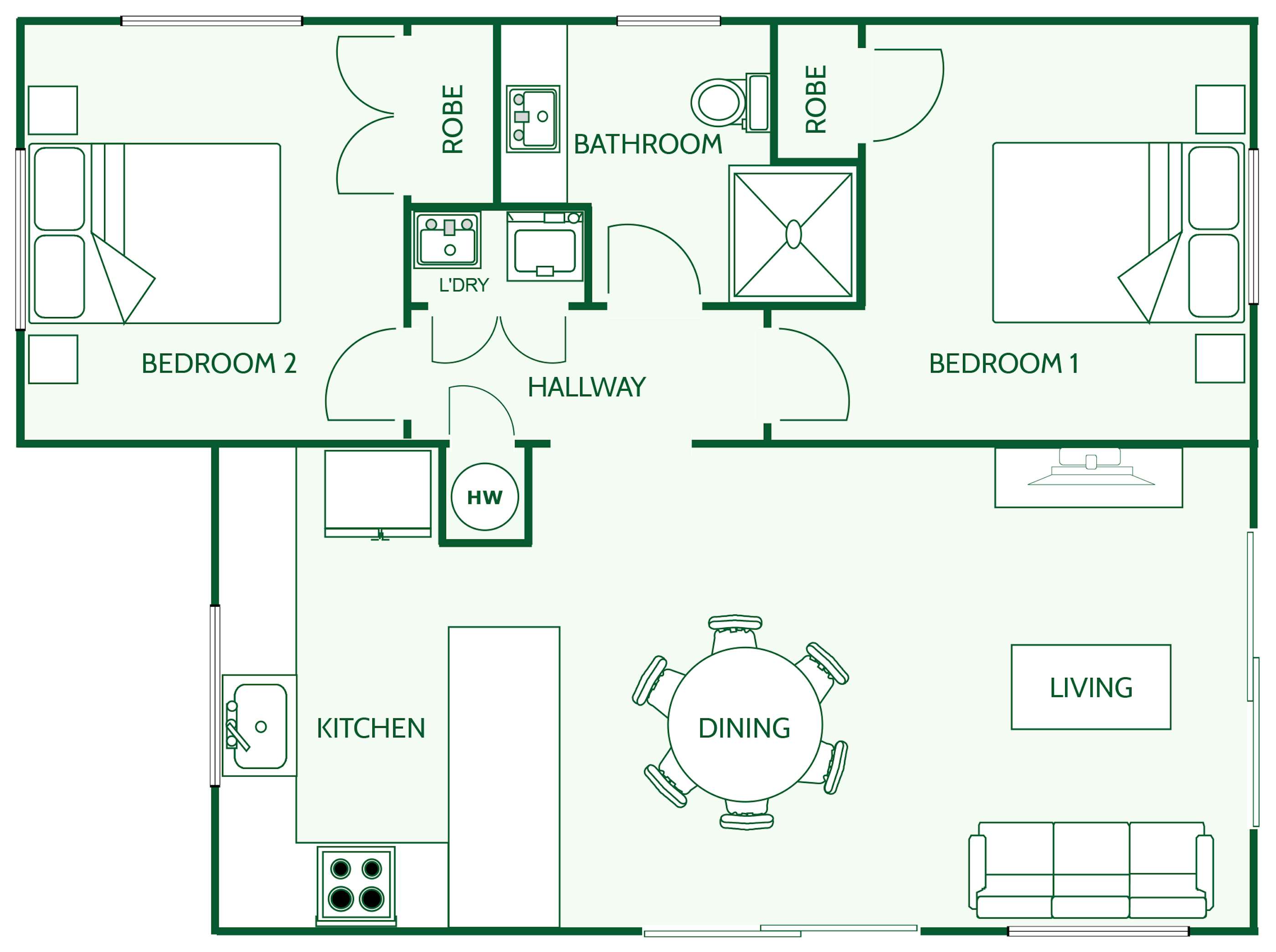
Designed for effortless living, this compact two-bedroom layout makes the most of every metre. It’s a smart choice for multigenerational living, extra income, or creating a peaceful guest retreat on your property. Work with our team to personalise the exterior palette and finishes so it feels right at home on your site. And yes, you can still top it off with a Signature-pattern bean bag for the perfect finishing touch on the deck.
Our Signature Service Promise
We believe building your home should feel exciting, not stressful. That’s why when you choose Signature Homes, you’ll get:
- The best building guarantees in NZ — so you can build with total peace of mind.
- The best service in the business — we’re with you every step of the way.
- Transparent, accurate pricing — no surprises, just honesty.
- Over 40 years of experience — helping Kiwis create homes they love.
- Accurate build timelines — so you always know what’s ahead.
Read more
Karaka 60
House size 60㎡
- Beds2
- Bathrooms1
- Receptions1
Enquire about this plan
Karaka 60 Floorplan




