














































Signature Homes Clevedon House Plan
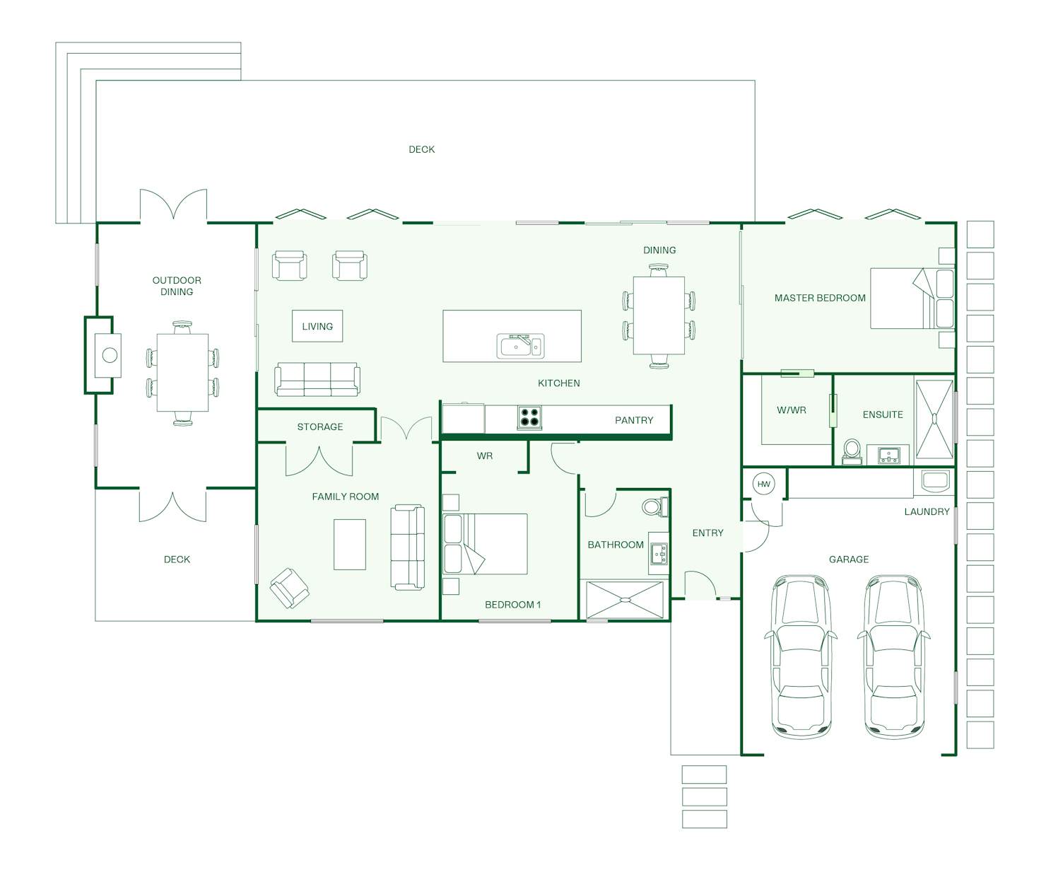
The Clevedon is a two-bedroom boutique lifestyle home that proves you don't need a big footprint to live beautifully.
Warm brick and bold dark cladding create a striking rural character, while inside, a designer open-plan kitchen and living space flows seamlessly to a resort-style outdoor entertaining area complete with pool, pergola, and hot tub.
Whether you're tending the veggie garden, relaxing by the fire, or taking in the views, the Clevedon is for those who love the land and want a home that loves it too.
Our Signature Service Promise
We believe building your home should feel exciting, not stressful. That’s why when you choose Signature Homes, you’ll get:
- The best building guarantees in NZ — so you can build with total peace of mind.
- The best service in the business — we’re with you every step of the way.
- Transparent, accurate pricing — no surprises, just honesty.
- Over 40 years of experience — helping Kiwis create homes they love.
- Accurate build timelines — so you always know what’s ahead.
Read more
The Clevedon
House size 183㎡
- Beds2
- Bathrooms2
- Receptions2
- Parking2
Enquire about this plan
The Clevedon Floorplan





