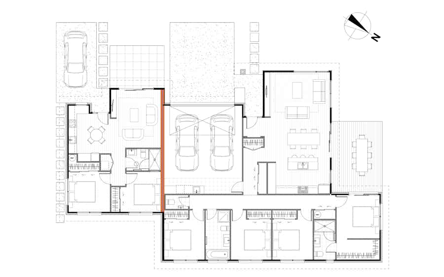
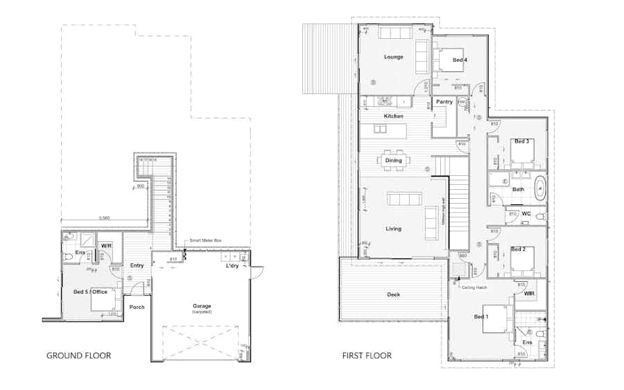
House & Land
House and Land Packages bring together a block of land and a home design that perfectly suits that section for a fixed price. It’s an easy, secure way to buy a new home, with no hidden costs or surprises.
Sub-region
Suburb
Bedrooms
Bathrooms
Home Size
From 0m2
To 500m2+
Section Size
From 0m2
To 1,000m2+
Price
From $100,000
To $1,500,000+



























































































































