



















Central Otago Dream Home Starts Here
From $1,720,000
McArthur Road, Springvale, Alexandra
Section size 88000㎡
House size 242㎡
- Beds4
- Bathrooms2
- Receptions1
- Parking2
or email carinamckenzie@signature.co.nz
Visit Signature Homes Central Otago
Enquire about this Package
Central Otago Dream Home Starts Here
McArthur Road, Springvale, Alexandra
Your Signature package, made easy
Discover the perfect balance of seclusion and convenience with lot 1 McArthur Road. This spectacular 8.8-hectare lifestyle House and Land Package, nestled in the heart of Central Otago.
This property offers 360-degree panoramic views of the breathtaking Central Otago landscape — a truly rare opportunity to create your dream home and retreat in one of New Zealand’s most stunning regions.
Enjoy the peace and privacy of a rural haven while remaining close to everything you need. Just a 10-minute drive takes you to the vibrant townships of Alexandra and Clyde, where you’ll find cafes, shops, and local amenities. For world-class adventure, Queenstown is only an hour away, offering skiing, fine dining, boutique shopping, and convenient access to the international airport.
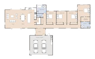
If you're looking for a home that offers an indoor-outdoor flow, our Maxwell design is for you. The Pavilion style design is about easy flow and highly liveable spaces with four bedrooms and open living spaces for families to connect. With the unique opportunity to customize finishes and features - or start from scratch with our Design and Build service - you can make your mark on the design to create a home that truly reflects your taste and lifestyle.
With expansive mountain vistas, endless skies, and the serene beauty of nature all around you, this House and Land Packages offer the perfect lifestyle blend — a peaceful sanctuary that keeps you connected to the best of Central Otago.
Signature features
- 242m2 of living
- 8.8-hectare lifestyle section
- 60K Power run in allowance included
Our Signature Service Promise
- We believe building your home should feel exciting, not stressful. That’s why when you choose Signature Homes, you’ll get:
- The best building guarantees in NZ - so you can build with total peace of mind.
- The best service in the business - we’re with you every step of the way.
- Fixed pricing - no surprises, just honesty.
- Over 40 years of experience - helping Kiwis create homes they love. Accurate build timelines - so you always know what’s ahead.
Package includes
- Signature Homes market-leading Building Guarantees
- Your choice of internal and external colours
- Fixed Price Guarantee
Floorplans: Central Otago Dream Home Starts Here




Location
McArthur Road, Springvale, Alexandra
