











Downsizer's Dream
From $699,000
109 Marsh Avenue, Lockerbie Estate
Section size 248㎡
House size 121㎡
- Beds2
- Bathrooms2
- Receptions1
- Parking1
Enquire about this Package
Downsizer's Dream
109 Marsh Avenue, Lockerbie Estate
Perfect for those looking to downsize, for first home buyers or investors
At Signature Homes Waikato we offer a Fixed Price Guarantee and our expert team will help you every step of the way.
This Duplex Unit comes at a great price in the popular location of Lockerbie Estate. With two units available and construction starting soon, these will be highly sought after. Get in quick and contact our team today.
Just 30 minutes’ drive from Hamilton, with ample amenities, parkland and open space, Lockerbie Estate is a convenient and family friendly location for all to enjoy.
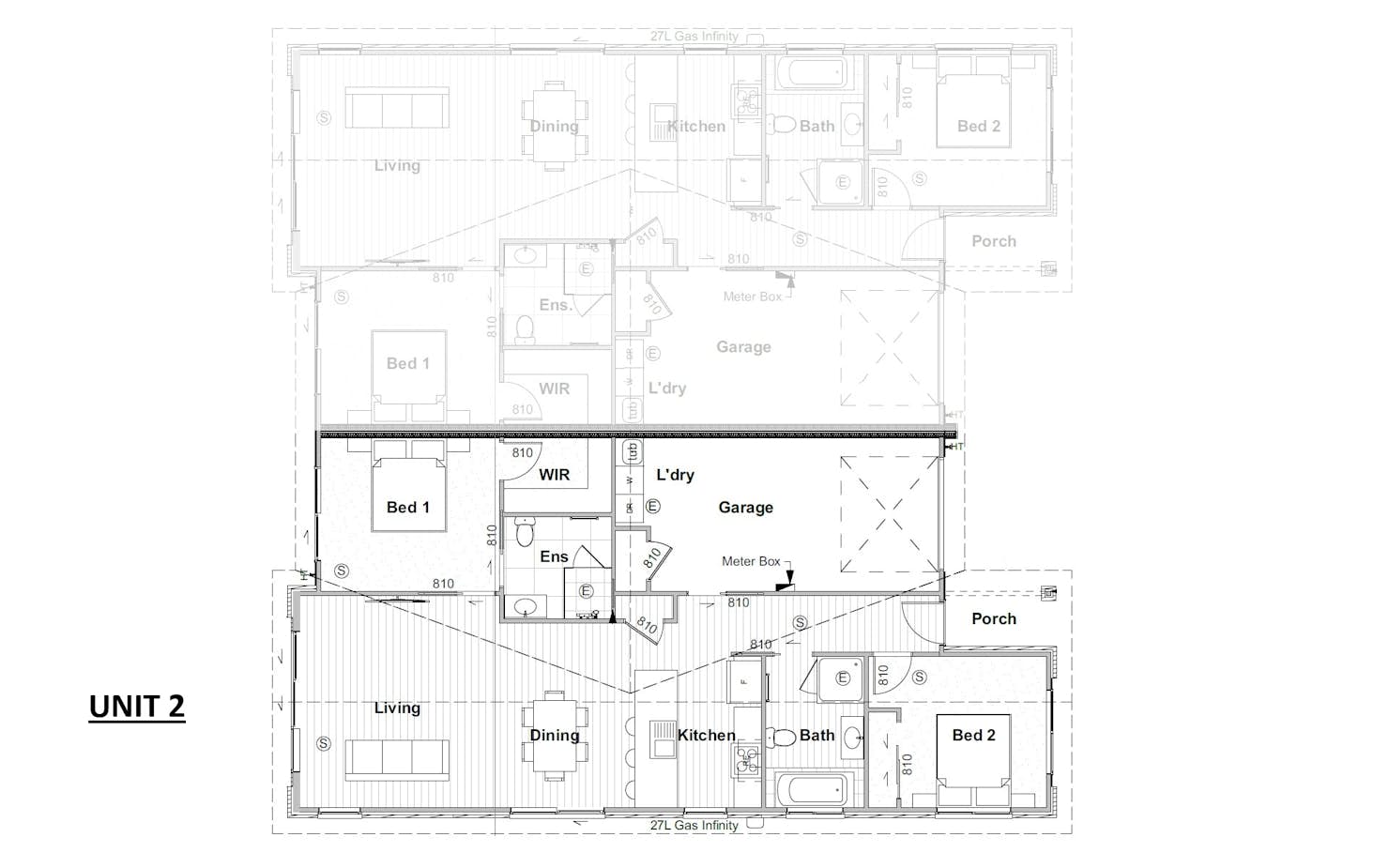
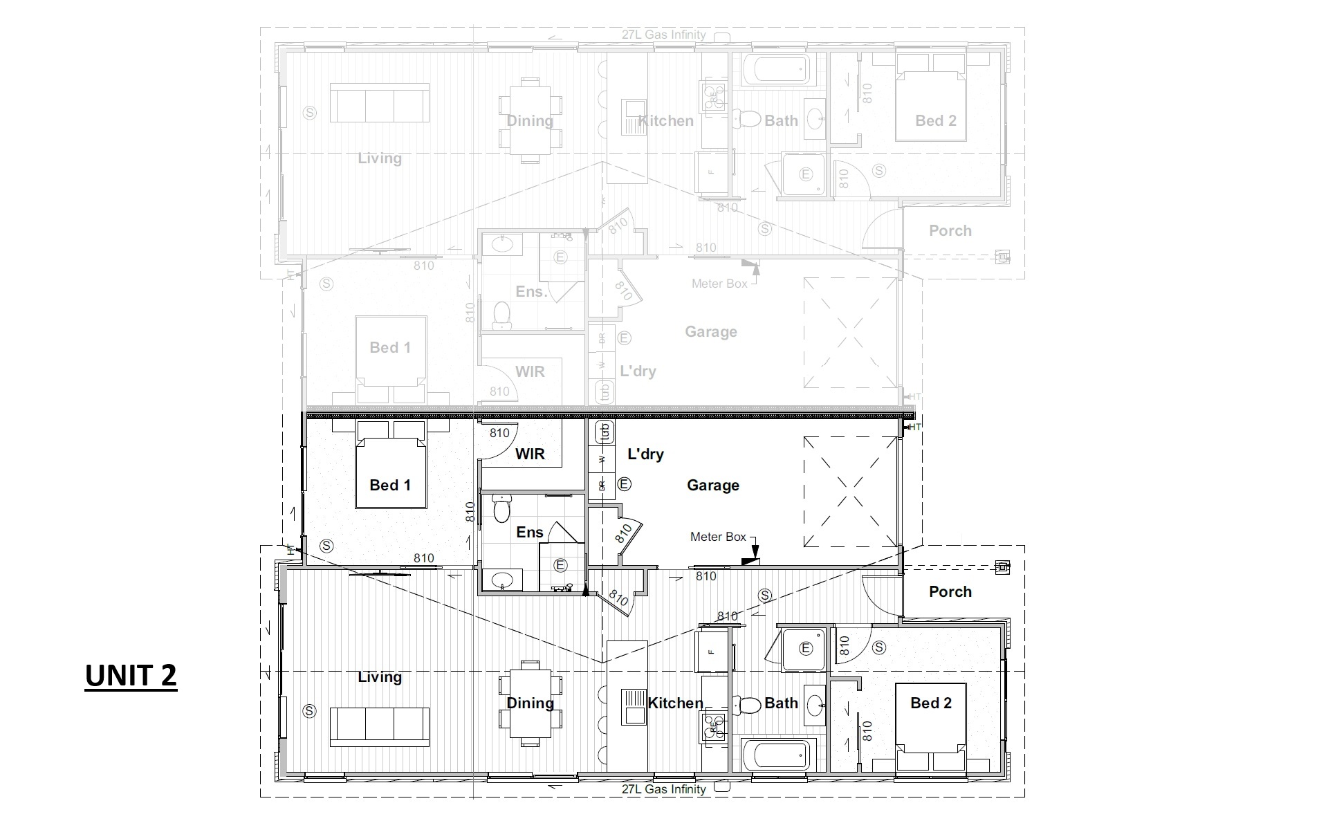
This House & Land Package Includes:
- 248m2 Freehold Section
- 121m2 Home
- 2 Bedroom 2 Bathroom
- Curtains Included
- Open plan Kitchen, Living, Dining
- Custom Mastercraft Kitchen with Overhead Cabinetery
- Stone Kitchen Bench Top and Splashback
- Brushed Nickel Tapware
- Tiled Ensuite Shower
- Clothesline
- Fencing
- Hydro-seeded Lawns
- Letter Box
- Exterior Concrete
- Garage Carpet
- Font Yard Landscaping Allowance
*Images are an artist's impression
Our Market Leading Guarantees
At Signature Homes we offer independently bonded Building Guarantees for complete cover and protection for our clients' investments during the build and long after we have handed over the keys.
Package includes
- Signature Homes market-leading Building Guarantees
- Fixed Price Guarantee
Floorplans: Downsizer's Dream




Location
109 Marsh Avenue, Lockerbie Estate
