












Elevate Your Everyday - Lot 444
Price by negotiation
2 Koohunga Street
Section size 447㎡
House size 147㎡
- Beds3
- Bathrooms2
- Receptions1
- Parking1
Enquire about this Package
Elevate Your Everyday - Lot 444
2 Koohunga Street
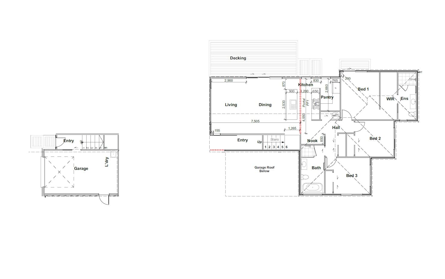
Currently progressing through consent, this thoughtfully designed 3-bedroom home offers the perfect blend of style, comfort, and easy coastal living. Positioned to capture elevated views, the home embraces a calming palette of neutral, earthy tones that create a warm and inviting atmosphere throughout.
Designed with modern lifestyles in mind, the layout delivers effortless flow between living spaces, complemented by a single internal access garage for convenience. The aesthetic leans into a refined, coastal feel—clean lines, natural textures, and timeless finishes combine to create a home that feels both sophisticated and relaxed.
Whether you're looking to secure a future home or invest in a beautifully considered design, this is an opportunity to step into low-maintenance living in a sought-after setting.
There is still time to add your touch to this home, get in contact today and our team will walk you through the process.
This House & Land Package Includes:
- 447m2 Freehold Section
- 147m2 Home
- 3 Bedroom
- 2 Bathroom
- Open plan Kitchen, Living, Dining
- Study Nook
- Walk in Pantry
- Clothesline
- Fencing
- Hydro seeded Lawns
- Letter Box
- Exterior Concrete
- Font Yard Landscaping Allowance
This design is subject to developer approval
Our Market Leading Guarantees
At Signature Homes we offer independently bonded Building Guarantees for complete cover and protection for our clients' investments during the build and long after we have handed over the keys.
-
Images are an artists impression
Read more
Package includes
- Signature Homes market-leading Building Guarantees
- Your choice of internal and external colours
- Fixed Price Guarantee
Floorplans: Elevate Your Everyday - Lot 444



Location
2 Koohunga Street


