



























Embrace a better way of living in Prebbleton
From $799,000
Hampton Grove
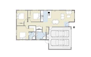
Section size 400㎡
House size 142㎡
- Beds3
- Bathrooms2
- Receptions1
- Parking2
or email debbieryan@signature.co.nz
Visit Signature Homes Christchurch South
Enquire about this Package
Embrace a better way of living in Prebbleton
Hampton Grove
Your Signature package, made easy
Your chance to secure a modern 142sqm three-bedroom, two bathroom, double garage home located in Hampton Grove, a great home for families and first home buyers who need a double garage, located in a peaceful corner in Prebbleton.
Signature features:
- Double garage with internal access
- Three bedrooms
- Established and thriving community connection
North facing back yard with a handy double garage this section offers a quiet comfortable option while respecting your budget.
Prebbleton offers the perfect balance of village charm and modern convenience. Just minutes from Christchurch City, it combines a peaceful, community-minded atmosphere with easy access to urban amenities.
This makes it fantastic for first home buyers and investors alike. The area enjoys strong rental demand, thanks to its popularity with families and professionals seeking quality schools, local shops, and a relaxed lifestyle within commuting distance of the city.
Buying in Prebbleton means investing in both lifestyle and long-term value — a sought-after location that continues to grow in appeal.
Titles expected end 2025
Our Signature Service Promise
We believe building your home should feel exciting, not stressful. That’s why when you choose Signature Homes, you’ll get:
- The best building guarantees in NZ - so you can build with total peace of mind.
- The best service in the business - we’re with you every step of the way.
- Fixed pricing - no surprises, just honesty. Over 40 years of experience - helping Kiwis create homes they love.
- Accurate build timelines - so you always know what’s ahead.
Package includes
- Signature Homes market-leading Building Guarantees
- Your choice of internal and external colours
- Fixed Price Guarantee
Floorplans: Embrace a better way of living in Prebbleton




Location
Hampton Grove


