
















Enjoy the Quiet Life Parkside
From $1,377,000
Parkside Estate Feilding
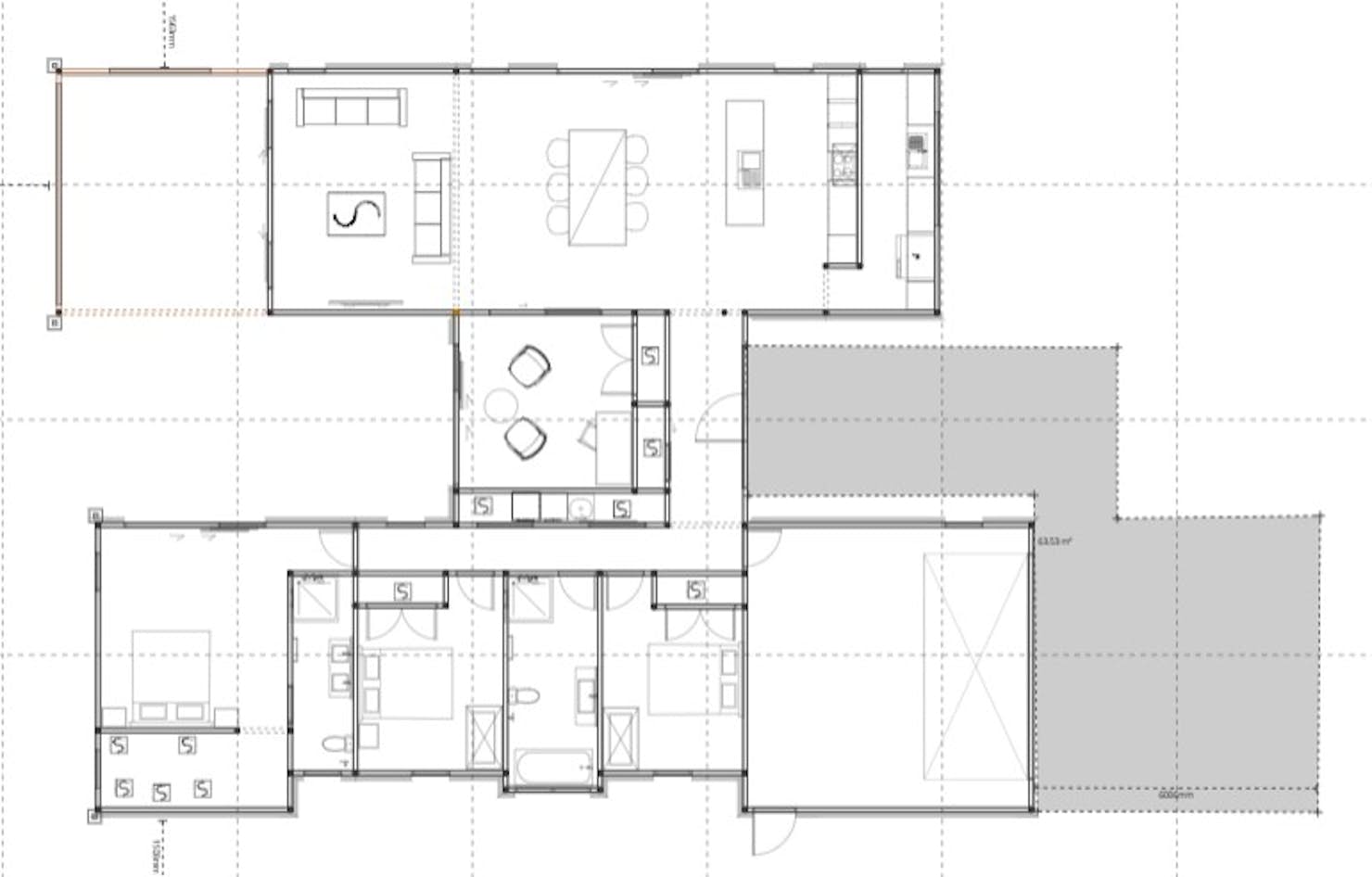
Section size 807㎡
House size 225㎡
- Beds3
- Bathrooms2
- Receptions2
- Parking2
or email andreacrutchley@signature.co.nz
Visit Signature Homes Palmerston North & Manawatu
Enquire about this Package
Enjoy the Quiet Life Parkside
Parkside Estate Feilding
Located on the outskirts of the Feilding township.
Parkside Estate is located on Roots Street East on the outskirts of the Feilding township in Manawatu, near Palmerston North.
Parkside Estate offers a unique advantage of living next to a local neighbourhood reserve for the perfect Live, Work and Play lifestyle.
The proposed Village Green Park will be an awesome feature of the area and will be well used by the community and neighbourhood.
The Village Green Park is unique because of the proposed extensive walking tracks, dog walking, open space for play and a playground. It has been specifically designed for use by the local area and is proposed to include a petanque court with pergola seating.
Park-facing sections within Parkside Estate enjoy views over the Village Green area, where no buildings can ever be built. As the premium sections within this estate, you will not want to delay securing your spot in this desirable Feilding subdivision. This plan will suit sections 12-18, offering a choice of location within the subdivision.
Offering a spacious 807m2, this section will not disappoint. This 225m2 plan features three well-appointed bedrooms and open-plan spaces that invite families to connect. The family-friendly layout also offers two living rooms and a family bathroom with a generous ensuite in the master.
This subdivision is finished to a high standard, with hotmix asphalt roading and bespoke street lighting, along with covenants to ensure your investment is protected.
Our house and land package includes: ducted heat pump, premium pine deck, driveway and entrance patio, letterbox and a clothesline.
Package includes
- Signature Homes market-leading Building Guarantees
- Your choice of internal and external colours
- Fixed Price Guarantee
Floorplans: Enjoy the Quiet Life Parkside



Location
Parkside Estate Feilding


