





















Iconic Waterfront Residence - Lot 418
Price by negotiation
98 Omahina Street, Raglan
Section size 765㎡
House size 291㎡
- Beds5
- Bathrooms3
- Receptions2
- Parking2
Enquire about this Package
Iconic Waterfront Residence - Lot 418
98 Omahina Street, Raglan
Positioned at the end of a private right of way in Rangitahi Peninsula’s prestigious Stage 4, represents one of the peninsula’s most desirable waterfront offerings. Framed by panoramic water views and coastal tranquillity, this exceptional site combines privacy, design sophistication, and an unparalleled Raglan lifestyle.
Designed to impress, this remarkable five-bedroom, two-lounge residence blends refined contemporary architecture with versatile functionality — ideal for those seeking a luxury home with potential for extra income if needed. Custom-designed multi-level home showcasing spacious living and the opportunity to escape and unwind in your own corner of this remarkable home. The lower level offering its own paradise for visiting family or Airbnb guests.
This masterpiece is already underway and due for completion soon, oozing with extras to make for effortless living, allowing you more time with the family outdoors or on the sea.
Built in features to this home:
- 765 m² freehold waterfront section
- 291 m² architecturally designed multi-level home
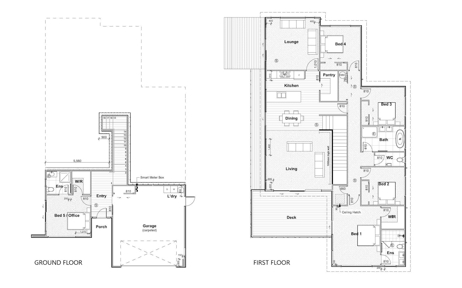
- Five bedrooms, three bathrooms, two lounges
- Large double garage
- 2.5m stud height throughout
- Custom Master Craft designer kitchen with engineered stone benchtop
- Premium Fisher & Paykel appliances
- 60 m² elevated decking overlooking the water
- Comprehensive landscaping, fencing, and hydro-seeded lawns
- Ducted heating on upper level + Heat pump on the lower level
- Glass balustrade
Discover a rare blend of natural beauty and architectural distinction — where coastal serenity meets sophisticated design. Rangitahi Peninsula offers a community unlike any other, where every detail reflects a commitment to quality, sustainability, and modern coastal living.
Enquire now to receive full specifications and begin your journey to a signature home on Raglan’s waterfront.
If you are thinking of Raglan, think of this!
Package includes
- Signature Homes market-leading Building Guarantees
- Your choice of internal and external colours
- Fixed Price Guarantee
Floorplans: Iconic Waterfront Residence - Lot 418




Location
98 Omahina Street, Raglan
