











Low Maintenance in Bridleways Estate
From $1,049,963
26 Tangaroa Street (Lot 86), Bridleways Estate, Cambridge
Section size 401㎡
House size 174㎡
- Beds3
- Bathrooms2
- Receptions1
- Parking2
Enquire about this Package
Low Maintenance in Bridleways Estate
26 Tangaroa Street (Lot 86), Bridleways Estate, Cambridge
Secure your spot in this highly sought after subdivision
This home offers 3 generously sized bedrooms and an open plan, north-west facing living areas, all on a low-maintenance, flat section. Along with a purposeful kitchen and custom scullery for all your everyday needs, this house & land package carries many modern amenities, energy-efficient features, and a functional layout.
Nestled in the increasingly popular town of Cambridge, Bridleways Estate is a secure and community-focused neighbourhood designed with families in mind. Wide streets, ample green spaces and schools nearby make it the perfect setting for raising children.
This house & land package is yet to be built, giving you the chance to work with our team to make it your own.
This House and Land Package Includes:
- 401m2 freehold title ready section
- 174m2 home
- Double garage
- 3 Bedroom
- 2 Bathroom
- Open plan Kitchen, Dining, Living
- Heatpump
- Clothesline
- Fencing
- Letterbox
- Hard Landscaping
- Hydro-seeded Lawns
- Front Yard Planting Allowance
- Solar Panels
- Electric Vehicle Pre-Wire
*Photos are an artist's impression only
Package includes
- Signature Homes market-leading Building Guarantees
- Your choice of internal and external colours
- Fixed Price Guarantee
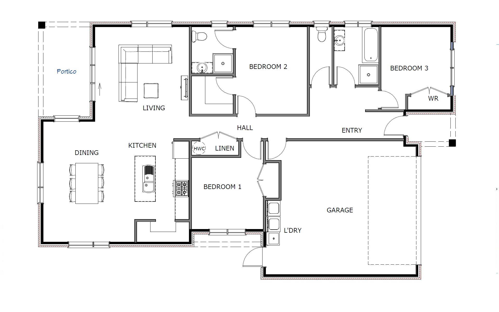
Floorplans: Low Maintenance in Bridleways Estate




Location
26 Tangaroa Street (Lot 86), Bridleways Estate, Cambridge
