



































Open Plan Living on a Prime Elevated Section in Paerata
From $1,648,251
Stage 9, Paerata Rise
Section size 608㎡
House size 232㎡
- Beds4
- Bathrooms2
- Receptions1
- studies1
- Parking2
or email darylgoodwin@signature.co.nz
Visit Signature Homes Papakura & Franklin
Enquire about this Package
Open Plan Living on a Prime Elevated Section in Paerata
Stage 9, Paerata Rise
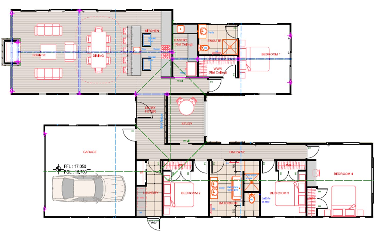
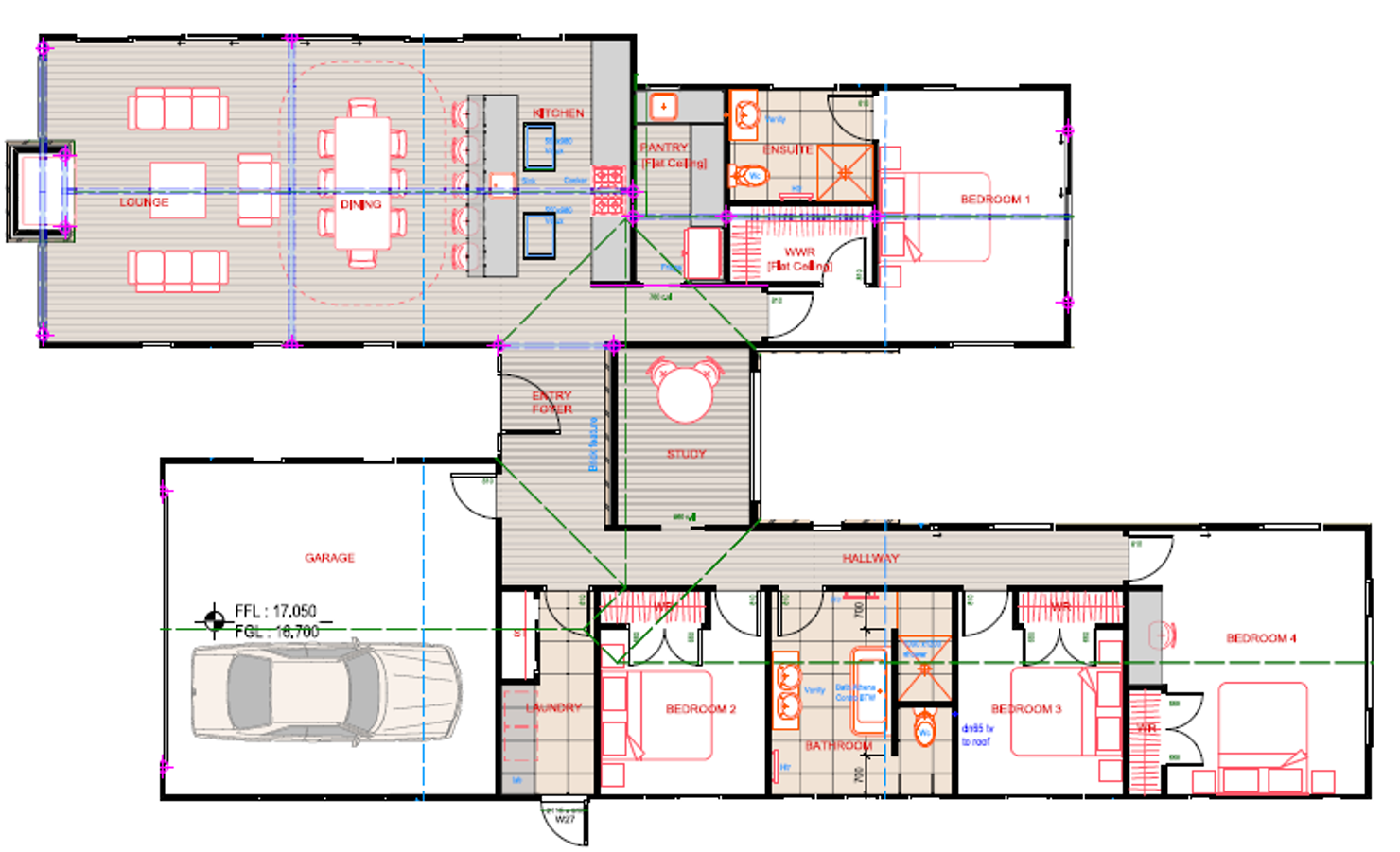
Your Stunning New Family Home in Paerata Rise
This beautifully designed home offers four spacious bedrooms, including a master suite with a walk-in wardrobe and ensuite. The raked ceiling enhances the open-plan kitchen, dining and living area, which flows effortlessly to generous decking.
Paerata Rise is a new build lifestyle community developed between Karaka and Pukekohe, approximately 40 minutes from Central Auckland, comprising 4,500 new houses intertwined with green spaces, cycle paths and walkways. It includes 5ha of neighbourhood reserves, schools, a retail precinct, and a transport hub with a railway station.
Signature Features
- 608m2 of north-facing land
- Double Garage
- Four spacious bedrooms, including a master suite with walk-in-wardrobe & ensuite
- Fully engineered raked ceiling to kitchen, dining & living
- Gas Fire + Heat pump
- Loads of decking area
- Modern kitchen with Fisher & Paykel appliances
- Topsoil, grass seed some landscaping & fencing
- Infrastructure Growth Charge (IGC)
Our Signature Service Promise
We believe building your home should feel exciting, not stressful. That’s why when you choose Signature Homes, you’ll get:
- The best building guarantees in NZ — so you can build with total peace of mind.
- The best service in the business — we’re with you every step of the way.
- Transparent, accurate pricing — no surprises, just honesty.
- Over 40 years of experience — helping Kiwis create homes they love.
- Accurate build timelines — so you always know what’s ahead.
Ready to stop dreaming and start building?
Contact Signature Homes Papakura & Franklin today and let’s turn your vision into your front-door key.
All house and land packages are fully customisable and can be tailored to suit your lifestyle and needs. Final home appearance may vary based on design choices. Price is subject to engineering and final design requirements.
Package includes
- Signature Homes market-leading Building Guarantees
- Your choice of internal and external colours
- Fixed Price Guarantee
Floorplans: Open Plan Living on a Prime Elevated Section in Paerata




Location
Stage 9, Paerata Rise


