



















A Rare Find in Ranghitahi
From $1,070,970
3 Katakata Street (Lot 515), Ranghitahi, Raglan
Section size 386㎡
House size 154㎡
- Beds3
- Bathrooms2
- Receptions1
- Parking1
Enquire about this Package
A Rare Find in Ranghitahi
3 Katakata Street (Lot 515), Ranghitahi, Raglan
Looking at Land in Rangitahi, but don't know where to start?
A House and Land Package is a great way to secure a brand new build, designed exactly the way you like it, without the stress of having to start from scratch.
In close proximity to the Raglan township, Rangitahi is one of the most unique developments in New Zealand. The tranquil harbour estuary reaches out to the Tasman Sea and hugs the peninsula with its diverse sections available to both permanent residents and weekend holiday makers alike.
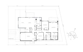
Located in Stage 5's The Landing, Lot 515 is a rare find in Rangitahi boasting a mostly flat site and great North West facing back yard. Our 3 bedroom design compliments the site well and offers a striking low maintenance home, perfect for those looking to make the move to Rangitahi full time or looking for a home away from home in this unbeatable location.
This House & Land Package Includes:
- 386m2 Freehold Section
- 154m2 Home
- 3 Bedroom
- 2 Bathroom
- Open plan Kitchen, Living, Dining
- Walk in Pantry
- Clothesline
- Fencing
- Hydro seeded Lawns
- Letter Box
- Exterior Concrete
- Font Yard Landscaping Allowance
*Images are an artists impression
This design is subject to developer approval
Our Market Leading Guarantees
At Signature Homes we offer independently bonded Building Guarantees for complete cover and protection for our clients' investments during the build and long after we have handed over the keys.
Package includes
- Signature Homes market-leading Building Guarantees
- Your choice of internal and external colours
- Fixed Price Guarantee
Floorplans: A Rare Find in Ranghitahi




Location
3 Katakata Street (Lot 515), Ranghitahi, Raglan
