






























Large 173m² Duplex – Move-In Ready in Huapai
From $1,115,000
29 Babina Ave
Section size 215㎡
House size 173㎡
- Beds3
- Bathrooms2.5
- Receptions1
- Parking1
or email caseyross@signature.co.nz
Visit Signature Homes West & North-West Auckland
Enquire about this Package
Large 173m² Duplex – Move-In Ready in Huapai
29 Babina Ave
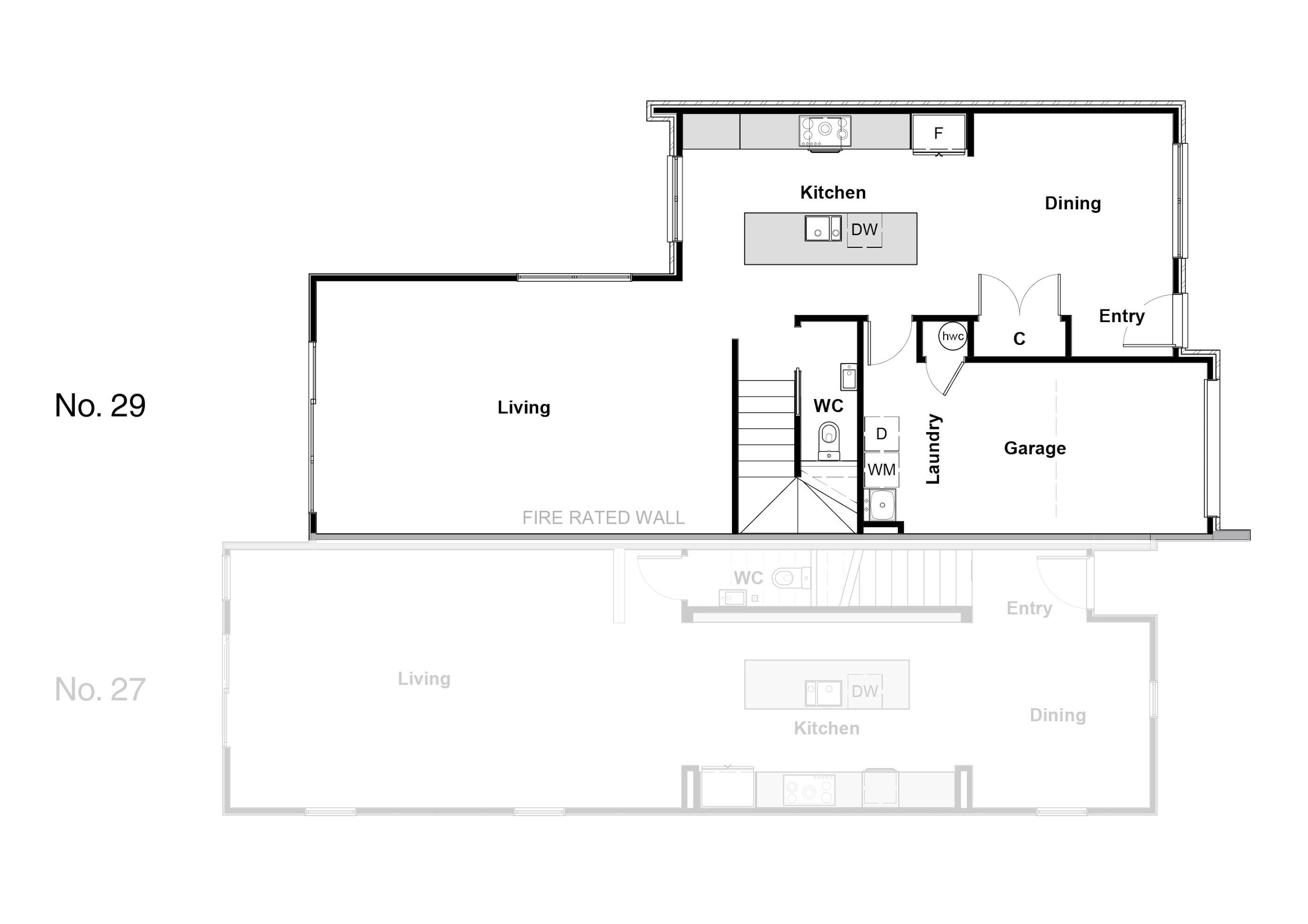
- Low-maintenance 173m² executive duplex
- 3 bedrooms, 2.5 bathrooms, internal access garage
- Move-in ready today
- 10-year weathertightness and structural guarantee
- 2-year service guarantee
Here's your chance to secure a quality, brand new Signature Homes build in the heart of the Huapai triangle.
At 173m², this is duplex living without compromise. Three substantial bedrooms occupy the upper level, creating quiet retreats from the main living areas. Downstairs, the open-plan kitchen brings the living and dining areas together, forming a central space that works beautifully for everyday life and entertaining guests. Two and a half bathrooms are strategically placed, while the internal access garage adds extra convenience.
The easy-care section is professionally landscaped, making this home move-in ready.
Located in the Huapai triangle, you are within walking distance of Huapai School and local amenities, while the pedestrian bridge connects you to the main shopping precinct. The broader Kumeu area offers dining, outdoor adventures, and essential services, with the popular Huapai Country Club cafe just minutes away.
See what 173m² of duplex living really feels like. Call or message Signature Homes West & North-West Auckland today to book your viewing.
Please Note: Digital staging has been used in the bedrooms and bathroom to help you visualise the space. These areas are currently unfurnished.
Floorplans: Large 173m² Duplex – Move-In Ready in Huapai





Location
29 Babina Ave




