












Central Morrinsville Location - Lot 8
From $797,400
2 Vicarage Lane, (Lot 8), Morrinsville
Section size 441㎡
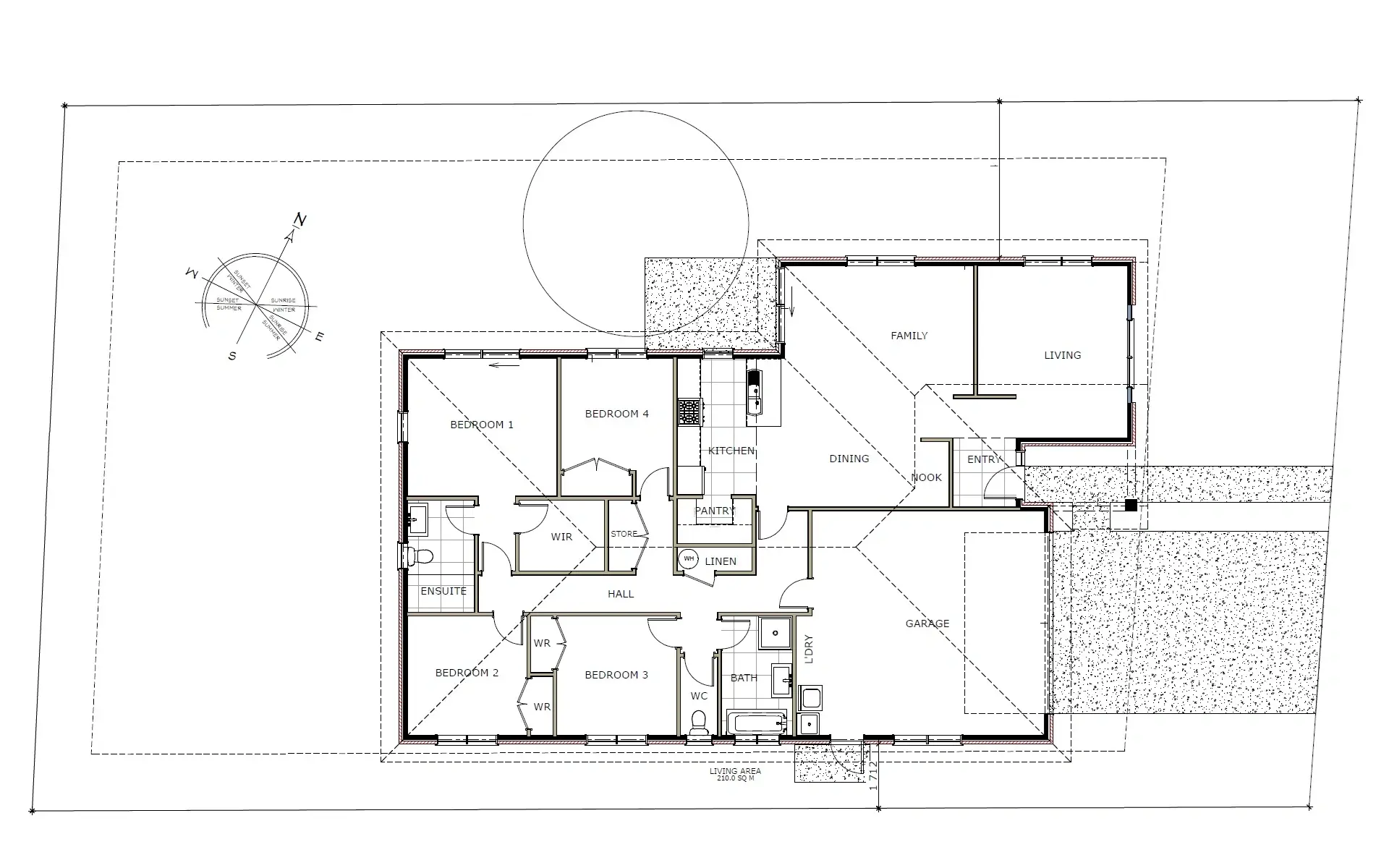
House size 159㎡
- Beds3
- Bathrooms2
- Receptions1
- Parking2
Enquire about this Package
Central Morrinsville Location - Lot 8
2 Vicarage Lane, (Lot 8), Morrinsville
Spacious new home with low maintenance
Build your dream home with Signature Homes Waikato and our Fixed Price Guarantee
Within an easy stroll to the thriving town centre, you'll have the best of both worlds here with this striking new property in a well-established neighbourhood. Perfect for those seeking a spacious new home with low maintenance section in the popular Morrinsville area.
This house & land package is yet to be built, giving you the chance to select your colours whilst working with our colour consultant.
This House & Land Package Includes:
- 441m2 Freehold Section
- 159m2 Family Home
- 3 Bedroom
- 2 Bathroom
- Open plan Kitchen, Living, Dining
- Clothesline
- Fencing
- Hydro-seeded Lawns
- Letter Box
- Exterior Concrete
*Images are an artists impression or of a previous build similar to this plan.
Package includes
- Signature Homes market-leading Building Guarantees
- Your choice of internal and external colours
- Fixed Price Guarantee
Floorplans: Central Morrinsville Location - Lot 8



Location
2 Vicarage Lane, (Lot 8), Morrinsville


