



























Bush Views in Stanmore Bay – Ready for Xmas!
From $1,449,000
11 Ti Tree Lane, Stanmore Bay
Section size 805㎡
House size 176㎡
- Beds4
- Bathrooms2
- Receptions1
- Parking3
or email trishday@signature.co.nz
Visit Signature Homes Rodney & North Shore
Enquire about this Package
Bush Views in Stanmore Bay – Ready for Xmas!
11 Ti Tree Lane, Stanmore Bay
Wake up to a better view in Stanmore Bay!
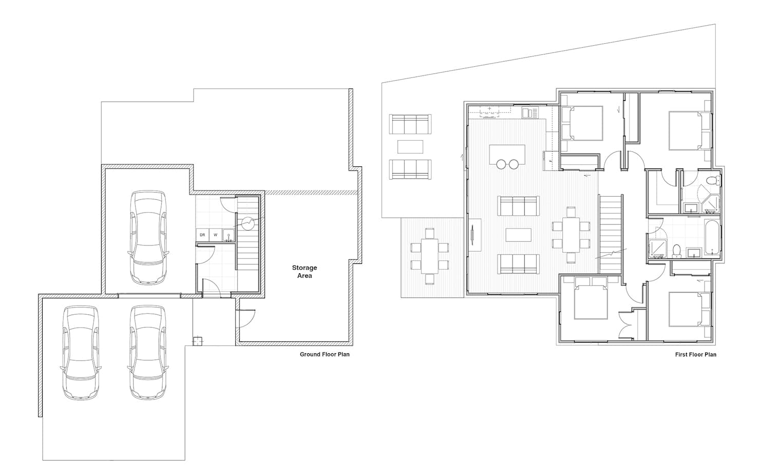
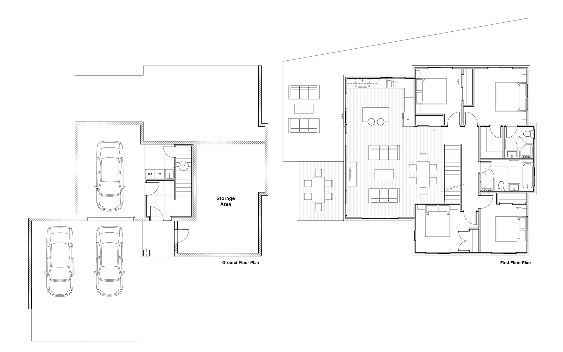
Welcome to 11 Ti Tree Lane, Stanmore Bay – where effortless living meets stunning bush views. This well-designed home features four generous bedrooms upstairs, with two bathrooms. The modern kitchen, dining, and open-plan living area that flows onto a sunny, north-facing deck overlooking peaceful native surroundings. The ground floor includes a separate laundry, under-house storage, a single-car garage, and parking for two more vehicles. With the landscaping left as a blank canvas, you can create your ideal outdoor space – from a vibrant garden to an easy-care retreat.
Construction is well underway & will be complete mid-December, perfect to move into before Christmas! Reach out to our team today to secure this scenic bush outlook in Stanmore Bay.
Set in the stunning Hibiscus Coast region of Auckland, Ti Tree Lane offers a peaceful retreat from the hustle of city life. Surrounded by tranquil bush, it provides a serene lifestyle with easy access to nearby beaches, shops, and the upcoming Penlink highway.
House & Land features:
- Four spacious double bedrooms
- Open-plan kitchen, living, and dining area
- Modern kitchen with Fisher & Paykel appliances
- Deck offering serene bush views
- Expansive wrap-around patio
- Two bathrooms, including a master ensuite
- Single-car garage with additional driveway parking for two vehicles
- Down a quiet right-of-way
- Market-leading Guarantees, including 2 years of maintenance cover
- 100% Fixed Price!
This package excludes soft landscaping.
Package includes
- Signature Homes market-leading Building Guarantees
- Your choice of internal and external colours
- Fixed Price Guarantee
Floorplans: Bush Views in Stanmore Bay – Ready for Xmas!




Location
11 Ti Tree Lane, Stanmore Bay
