
































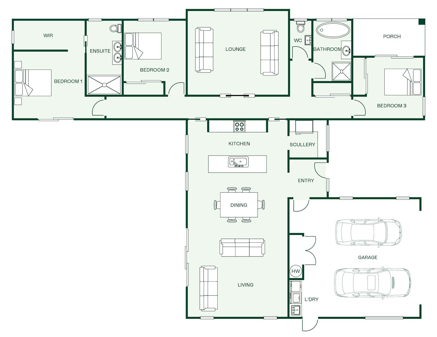
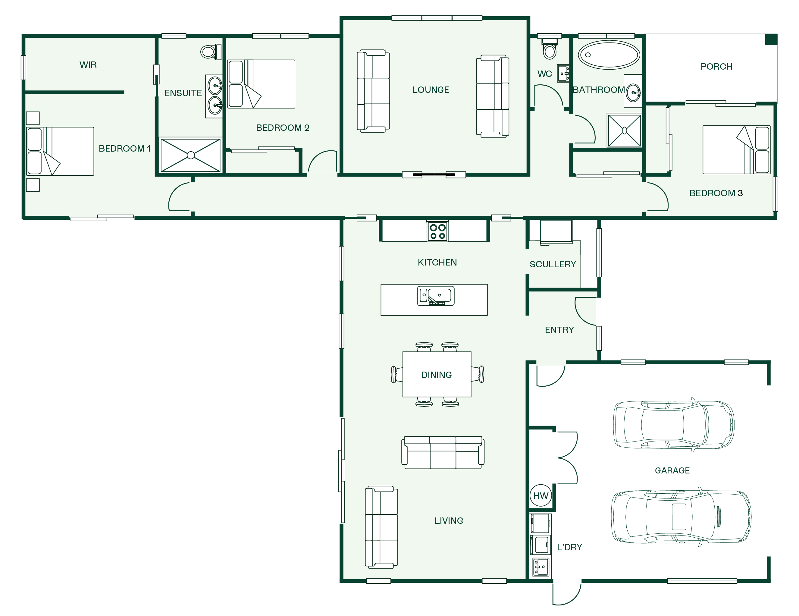
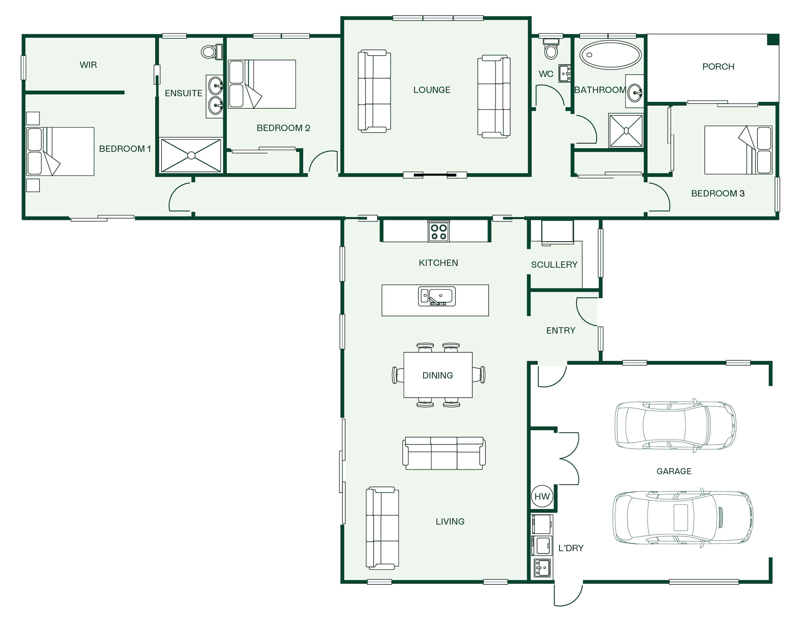
The Bridleways: A three bedroom Signature Homes new build
The Bridleways Showhome offers a perfect blend of Japanese minimalism and Scandinavian functionality. This 217sqm space embodies the Japandi design philosophy, creating a calm and stylish environment for modern living.
The three-bedroom layout balances open areas for togetherness with private spaces for relaxation. Natural elements are central, with light and dark woods creating a warm, organic feel. Neutral tones throughout enhance the earthy aesthetic,fostering a sense of serenity.
Clean lines and uncluttered spaces define the interior, with ample natural light promoting a sense of peace. Subtle touches like ceramic vases and a neutral marble kitchen backsplash add a touch of elegance without overwhelming the simplicity.
Our Signature Service Promise
We believe building your home should feel exciting, not stressful. That’s why when you choose Signature Homes, you’ll get:
- The best building guarantees in NZ — so you can build with total peace of mind.
- The best service in the business — we’re with you every step of the way.
- Transparent, accurate pricing — no surprises, just honesty.
- Over 40 years of experience — helping Kiwis create homes they love.
- Accurate build timelines — so you always know what’s ahead.
Watch home tour below:
Bridleways
House size 217㎡
- Beds3
- Bathrooms2
- Receptions2
- Parking2
Enquire about this plan
Bridleways Floorplan




