




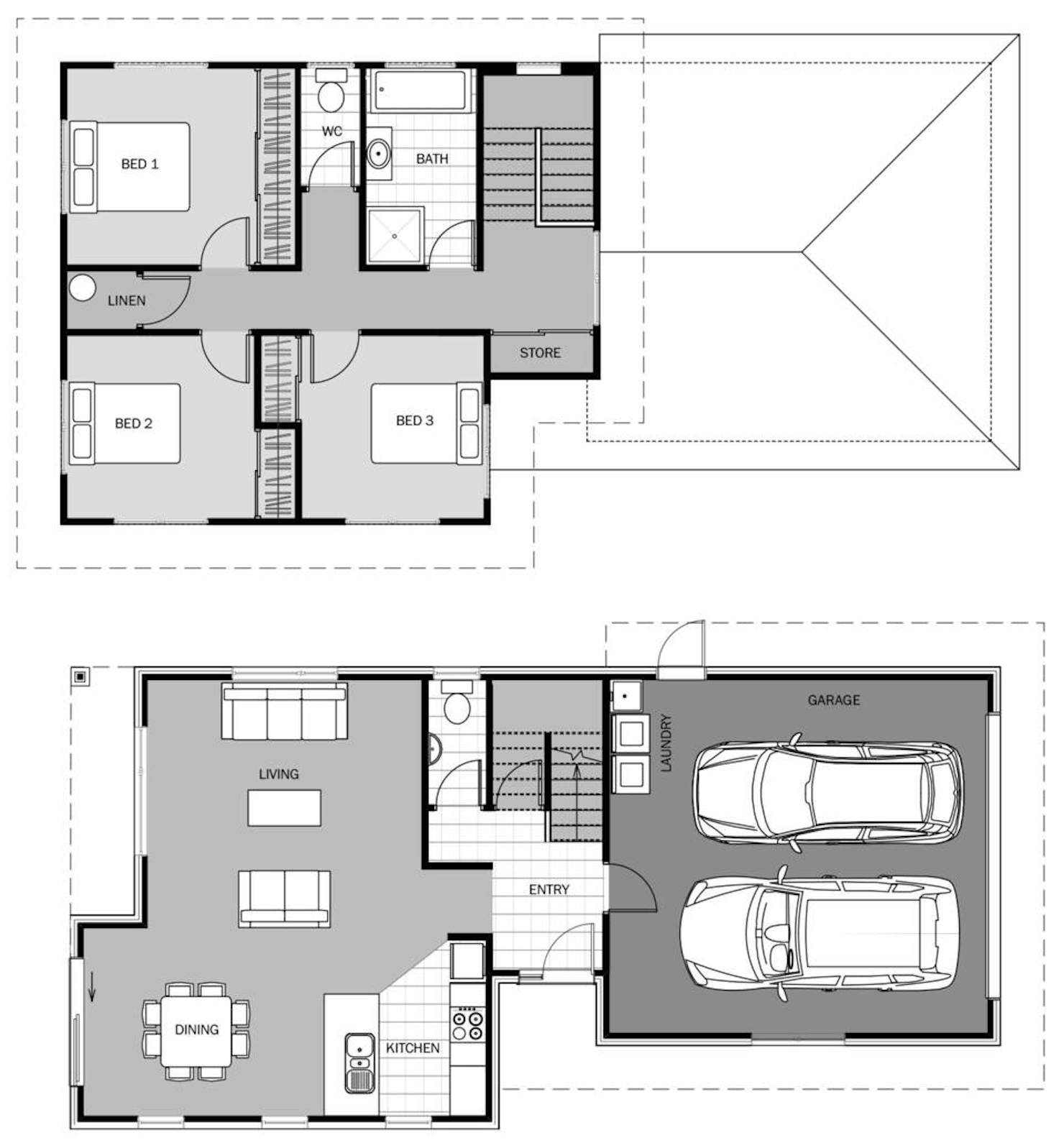
The Chatham: A three-bedroom Signature Plus Collection home by Signature Homes
- Three double bedrooms
- Double wardrobe for the master bedroom
- Open plan kitchen, dining and living areas
- Separate bathroom and WC
- Separate shower and bath in the bathroom
- Additional WC downstairs
- Double garage with internal access
- Covered patio off living room
Build this home with the added peace of mind of Signature Homes fixed price guarantee.
The Signature Plus Collection is design-led, featuring quality specifications from New Zealand's leading suppliers. Signature Plys Collection plans are designed with the Kiwi lifestyle in mind and will provide a quality living environment for years to come.
Customise this plan to suit your budget and lifestyle. Book your no-obligation new home workshop today.
Read more
Chatham - 167
House size 167㎡
- Beds3
- Bathrooms1.5
- Receptions1
- Parking2
Enquire about this plan
Chatham - 167 Floorplan





