
















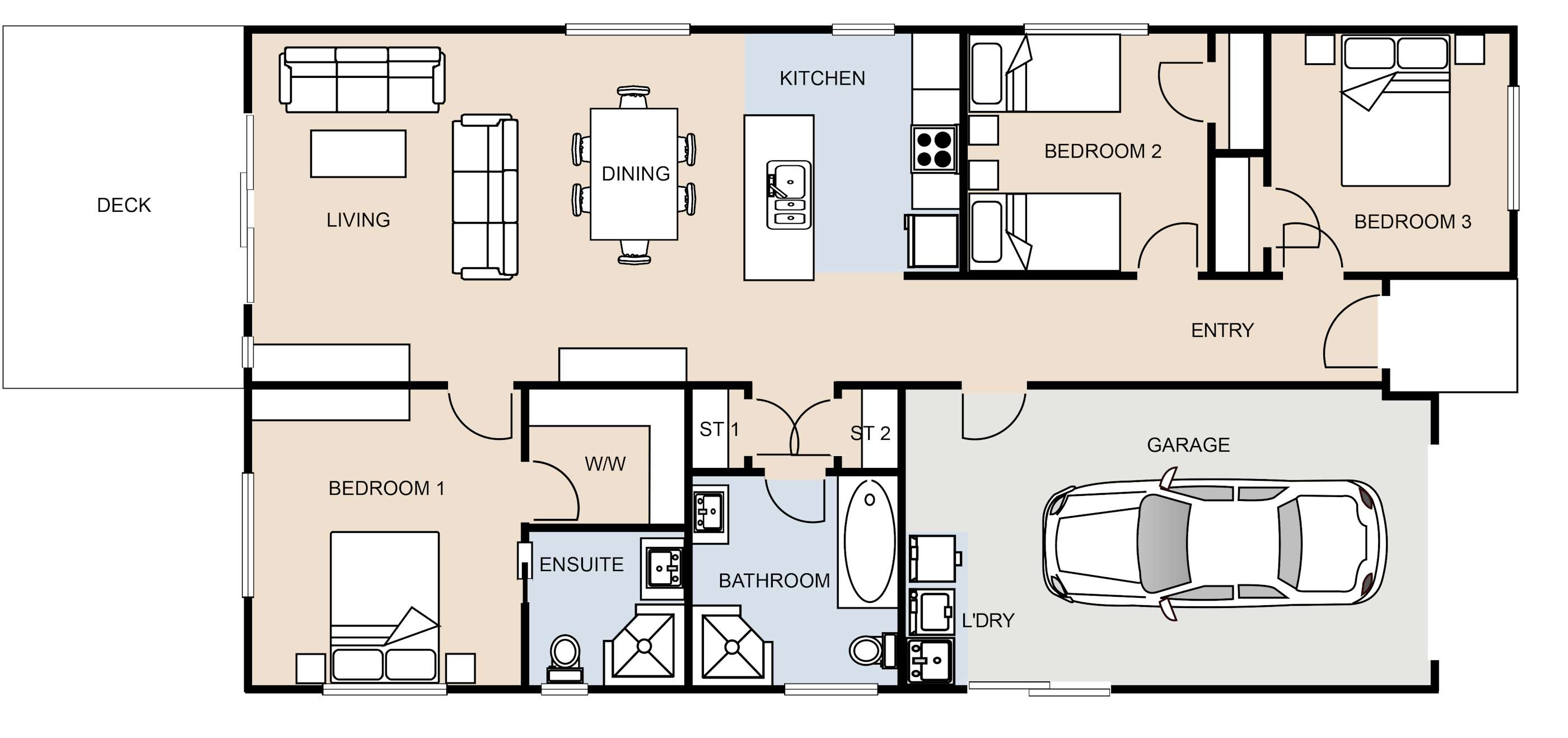
The Rimu: a three-bedroom house plan by Signature Homes
The Rimu house plan presents exceptional value and will appeal to those downsizing, but still want the extra space for friends and family to visit. Open-plan living sets the tone for this home, with a natural flow from the kitchen to the outdoor living space.
Our Signature Service Promise
We believe building your home should feel exciting, not stressful. That’s why when you choose Signature Homes, you’ll get:
- The best building guarantees in NZ — so you can build with total peace of mind.
- The best service in the business — we’re with you every step of the way.
- Transparent, accurate pricing — no surprises, just honesty.
- Over 40 years of experience — helping Kiwis create homes they love.
- Accurate build timelines — so you always know what’s ahead.
Read more
Rimu
House size 128㎡
- Beds3
- Bathrooms2
- Receptions1
- Parking1
Enquire about this plan
Rimu Floorplan




