
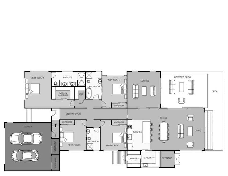
Honouring the environment and fitting into the landscape was an absolute must-have when designing the Belinda and Andrew’s home. Outdoor living was to be the standout feature with all-year-round options for outdoor entertaining.
View more images of Belinda & Andrew's home here.

Belinda and Andrew opted for Signature Homes Design & Build service with our Bay of Plenty Franchise. Choosing a Design & Build home meant they could realise their hearts’ desire. Everything was about connection to the water. You can see and hear the ocean the moment you open the front door.
View more images of Belinda & Andrew's home here.

Cedar was chosen for the exterior to complement the environment and withstand the harsh coastal conditions. Engineered timber floors in antique oak provides unity across communal areas, while bedrooms feature the lushest carpet they could find.
View more images of Belinda & Andrew's home here.

Aside from the outdoor firepit, the dramatic entranceway is a true standout feature which sets the tone for a relaxing lifestyle.
View more images of Belinda & Andrew's home here.