
Bryan & Marie spent eight years moving between 17 rental properties around NZ after the earthquakes before deciding make the move north to New Plymouth. They stumbled across a section in Moturoa which had spectacular sea views from the second storey and decided to take the plunge and build their new home.
View more images of Bryan & Marie's home here.

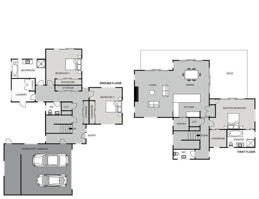
Signature Homes Taranaki designed Bryan and Marie’s home from scratch. It was situated to capture uninhibited sun in the living areas, plus needed to incorporate three bedrooms, two bathrooms, two toilets, plus a double garage with separate storage area.
View more images of Bryan & Marie's home here.

The retired couple didn’t have a plan in mind when they approached Signature Homes, but had a list of must-haves. Their home needed to be low maintenance and built to take in the sea views across to Port Taranaki.
View more images of Bryan & Marie's home here.

The couple decided on a mix of exterior cladding, all in similar light grey tones, which gives the home an industrial yet homely feel. The upper level and garage are clad in Rockcote Graphex, which is complemented by James Hardie Linea weatherboard and a natural finish honed concrete block.
View more images of Bryan & Marie's home here.