
Clarissa, Darren and their two children, Maaike (3) and Flynn (1), along with Ralph (dog) and Russell the (cat), set their hearts on a semi-rural site with stunning established trees Matangi, Waikato – building a home that truly feels at one with nature.
The Maxwell’s opted for Signature Homes Waikato’s Design & Build service, working with their award-winning design team to create a home that incorporated all of their ideas and needs for their growing family.
View more images of Clarissa & Darren's home here.

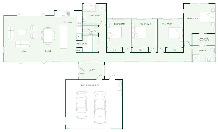
The Maxwell’s wanted a home that worked best for the site and was big enough to accommodate their growing family. A highly liveable home sums up their brief, with the option to extend the house in the future. Together with their Signature Homes design team, they designed a Pavilion style home that features open plan living and high-pitched ceilings. Of course, access to the outdoors from multiple spaces in the home was a must-have to!
View more images of Clarissa & Darren's home here.

If you're looking for a home that offers an indoor-outdoor flow, our Maxwell design is for you. The Pavilion style design is about easy flow and highly liveable spaces with four bedrooms and open living spaces for families to connect.
View more images of Clarissa & Darren's home here.

Clarissa and Darren love the look of the warm natural timber against the darker brick cladding. They used dark brick for the majority of the house, adding vertical shiplap cedar to the gabled ends of the house, entrance and covered areas to provide contrast. Working with their Signature Homes interior designer and colour consultant, they came up with a colour scheme that complements the natural environment using a combination of cool whites and dark colours in the kitchen.
View more images of Clarissa & Darren's home here.

“Signature Homes Waikato were recommended to us by a family member that had recently built with Signature. We were so impressed by Signature Homes Waikato’s advice and ability to take our ideas and design a home that enhanced our site even further.”says Darren
View more images of Clarissa & Darren's home here.