
Jamie and Matt wanted to build their family home in beautiful Papamoa with room to grow. After moving from busy Mount Maunganui, they knew the beachside town was the perfect place to raise their family.

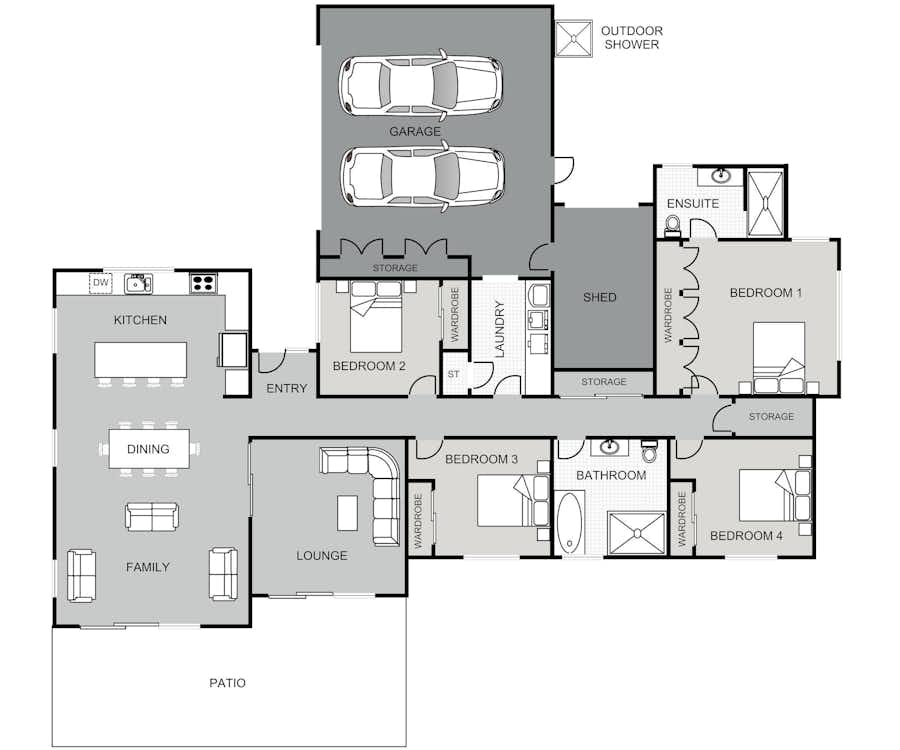
The home’s layout was inspired by the Caroline plan from our Pacific Collection, which Jamie and Matt saw in-person at a Signature showhome just down the road from their new home. They made a few tweaks to suit their lifestyle.

The home's exterior is a beautiful modern mix of James Hardie linea oblique weatherboard painted black, and vertical stained vulcan board.

An extra-large kitchen with extra bench space and hidden shelves instead of a butler's pantry was a must-have. The bright white cabinetry is perfectly complemented by stunning gold tapware and handles.