
Jess & Nick knew they wanted to buy their first home together in Pukekohe, where they both grew up. Building was an easy choice as they knew they could customise their home to suit their needs, including modifications for Jess who uses a wheelchair.

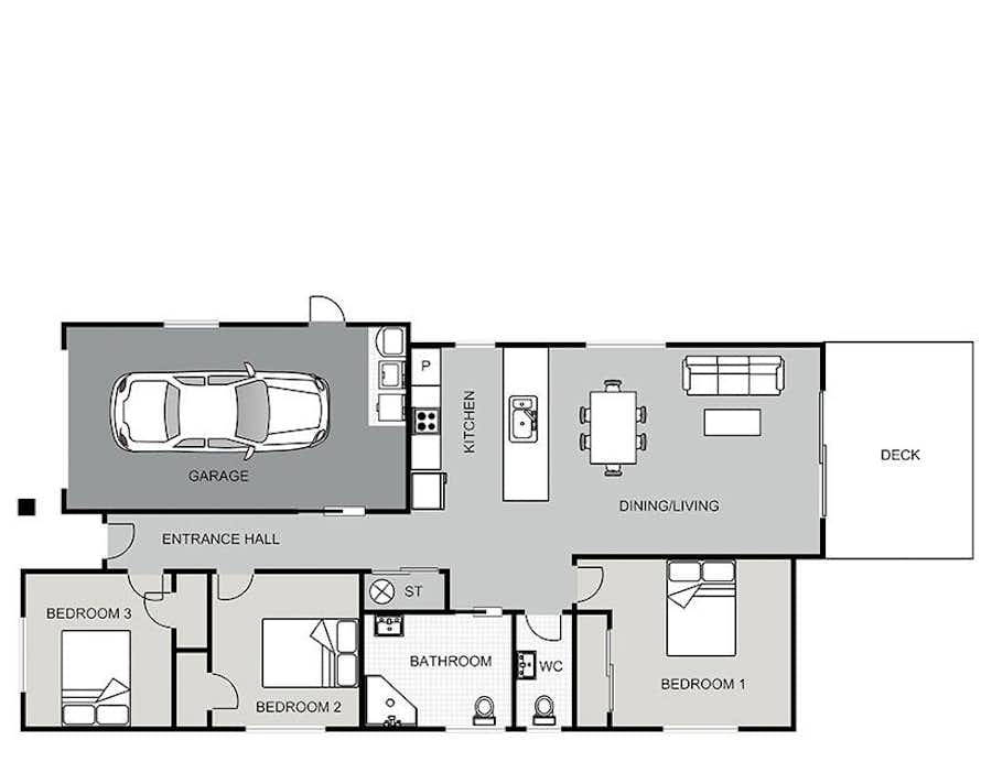
The home's layout was designed by Signature's architects to fit on the long, narrow site in a new Pukekohe subdivision. Jess & Nick made modifications to the House & Land Package to suit their needs.

Jess & Nick chose a light coloured brick with black joinery, garage, front door, roof and linea weatherboard accents for striking street appeal. Inside, the colours are neutral yet warm, with interest added through soft furnishings.

Jess & Nick made changes to the plan to accommodate Jess' wheelchair, such as wider hallways, level entry to the sunny deck area, and a larger family bathroom.