
Tim and Ingrid, along with their two children, are part of a special group of Signature clients who’ve chosen to build not once, but twice with Signature Homes. Their story spans regions, lifestyles, and life stages - and showcases the trust they’ve built with their Signature teams along the way.
Their building journey began with what they affectionately call their "remote build." Living in Wellington while building a home in Nelson could have been daunting, but the Signature Homes Nelson team made it seamless. The result was a beautiful lifestyle property with a large section and sweeping outloo - an idyllic space that served their family well, but wasn’t quite their long-term destination.

Next stop: the sun-soaked Bay of Plenty.
"We hadn’t planned on a new build in Tauranga,” Tim says. “We were focused on finding the right school zone, but nothing on the market suited us. When we spoke to the local Signature Homes team, they suggested a Knock Down & Rebuild, and the idea of building came back on the table."
Then, in a rare stroke of luck, a bare section came up for sale-long and narrow, but full of potential.
Building again felt right, because they already knew what was possible.
And while they’re happily settling into their sunny Bay of Plenty lifestyle, who knows, maybe one day there’ll be a third Signature chapter. For now, they’re right where they want to be.

"So we turned to Signature again to design a home that made the most of it."
From the beginning, the Signature team worked closely with Tim and Ingrid to maximise the site and create a home that suited their family’s day-to-day life.
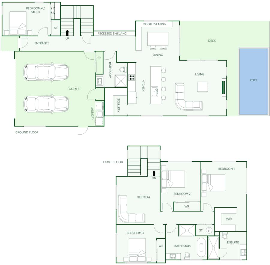
Designed to make the most of its site, the Ingrid offers light, space, and a natural flow between social areas and private zones.

While Tauranga offered a different lifestyle from Nelson, there were a few things they wanted to bring with them- space for a veggie patch, room for the kids to play, and the promise of a pool for hot Bay of Plenty summers.
"We wanted to carry a few highlights from our previous life with us," adds Ingrid.

What came to life was a thoughtful two-storey design that balances busy family living with calm, considered spaces for unwinding. It’s a home shaped by experience, confidence, and a team who truly understood what mattered most.

For Tim and Ingrid, this second build didn’t feel like starting from scratch.
"The Signature Homes team wrapped their expertise around us, gave us great advice, and created a design that really maximised our site," says Tim.