



























Character and Charm in Feilding
From $945,000
8 Turoa Street, Feilding
Section size 647㎡
House size 178㎡
- Beds4
- Bathrooms2
- Receptions1
- Parking2
Character and Charm in Feilding
8 Turoa Street, Feilding
Newly established boutique subdivision!
Turoa Street is a newly established boutique subdivision that captures the best reasons people are proud to call the Manawatu home.
Number 8 Turoa Street, is a 647m2 site (more or less) with the title issued, ready to build on.
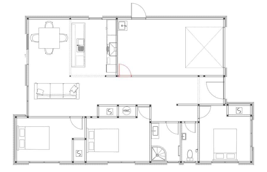
For number 8 Turoa Street, we’ve chosen our modern and low maintenance Toto plan. Making great use of space, the Toto is a crowd favourite.
Featuring four well positioned double bedrooms, family bathroom including an ensuite and an open plan living and dining area designed to optimise indoor/outdoor flow.
Find your place at Turoa Street:
You only need to stand on the land to understand why this new residential offering is truly special.
Signature Homes has developed a series of House & Land packages to suit different needs, or we can create a custom design that’s perfectly in tune with your lifestyle and budget. Either way, you will benefit from our best-in-class Fixed Price Contract offering as part of our market-leading building guarantees.
Each section is generous in size, positioned for privacy and in a location that offers the best of both worlds.
You’ll enjoy a relaxed lifestyle on Turoa Street, with all that Feilding has to offer within easy reach. Each home will be unique, where designs will honour the surrounding environment, and open-plan spaces will seamlessly connect to nature.
Advertised package includes allowance for window dressing and some landscaping is included. Contact Signature Homes Palmerston North & Manawatu for more information.
Talk to us today about personalising this package to suit your budget and lifestyle.
Package includes
- Signature Homes market-leading Building Guarantees
- Your choice of internal and external colours
- Fixed Price Guarantee
Floorplans: Character and Charm in Feilding




Location
8 Turoa Street, Feilding


