










Low Maintenance Lockerbie Living - Lot 18
From $745,178
27 Harp Street (Lot 18), Lockerbie Estate
Section size 300㎡
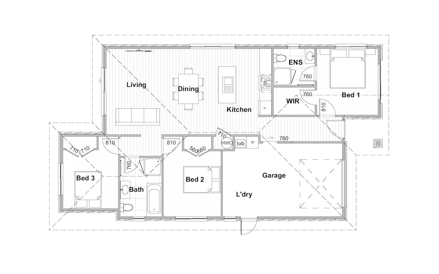
House size 124㎡
- Beds3
- Bathrooms2
- Receptions1
- Parking1
Enquire about this Package
Low Maintenance Lockerbie Living - Lot 18
27 Harp Street (Lot 18), Lockerbie Estate
Low-maintenance home and section!
Build your dream home with Signature Homes Waikato and our Fixed Price Guarantee
In the latest stage of Lockerbie Estate, Lot 18 offers a low-maintenance home and section in a great spot within this ever-popular Morrinsville subdivision. Perfect for those looking to downsize, first home buyers or investors, this package is not to be missed.
The amenities of Lockerbie Estate are second to none, with a brand-new childcare centre, Lockerbie Junction, and Oak Eatery, as well as a medical centre, pharmacy and superette to come. Just 30 minutes drive from Hamilton, with stacks of parkland and open space, this is the convenient and family-friendly location for all to enjoy.
This house & land package is yet to be built, giving you the chance to work with our team on your colour selections and finishings
This House & Land Package Includes:
- 300m2 Freehold Section
- 124m2 Home
- 3 Bedroom
- 2 Bathroom
- Open plan Kitchen, Living, Dining
- Clothesline
- Fencing
- Hydro-seeded Lawns
- Letter Box
- Exterior Concrete
- Font Yard Landscaping Allowance
*Images are an artists impression
Package includes
- Signature Homes market-leading Building Guarantees
- Your choice of internal and external colours
- Fixed Price Guarantee
Floorplans: Low Maintenance Lockerbie Living - Lot 18



Location
27 Harp Street (Lot 18), Lockerbie Estate


