


























Big on comfort, small on hassle in Milldale - Move in August!
From $1,189,000
Lot 1216, Te Taruna Drive, Milldale
Section size 320㎡
House size 143㎡
- Beds3
- Bathrooms2
- Receptions1
- Parking2
or email janewelch@signature.co.nz
Visit Signature Homes Rodney & North Shore
Enquire about this Package
Big on comfort, small on hassle in Milldale - Move in August!
Lot 1216, Te Taruna Drive, Milldale
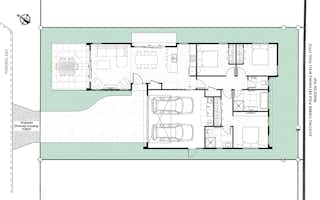
Enjoy effortless modern living in this stylish three-bedroom home, designed for low-maintenance comfort. Designed by LTD Architectural Design, this home boasts a high-quality finish and comes with Signature Homes' 2-year maintenance guarantee. The open-plan kitchen, living, and dining area flows seamlessly to a sunny patio - ideal for relaxing or entertaining. All bedrooms are generously sized, including the master suite with an ensuite and a large wardrobe. A double garage with built-in laundry completes the package.
Construction is well underway and expected to be completed by August 2026. Secure your brand-new home and start your journey with Signature Homes today!
Lot 1216 is perfectly positioned just a short stroll from the future Parkland Loop greenspace and Milldale’s upcoming town centre. Nestled between the well-established communities of Orewa, Millwater, Wainui, Dairy Flat, and Silverdale, Milldale offers a connected and convenient lifestyle. Enjoy easy access to Ahutoetoe School, the future town centre, and lush green spaces - all just minutes from your doorstep.
Feature included:
- Architecturally designed by LTD Architectural Design
- Low-maintenance, single-level home
- Spacious master bedroom with ensuite and built-in wardrobe
- Three well-sized double bedrooms
- Open-plan kitchen, living, and dining area
- Custom-designed kitchen with quality finishes
- Heat pump to master bedrom & living area
- Carpeted living spaces, hallway, and bedrooms
- Family bathroom plus separate WC
- Outdoor living with both a patio and a deck
- Double garage with integrated laundry
- Basic landscaping package included
Renders are for illustrative purposes only and are intended as an artist’s impression
Package includes
- Signature Homes market-leading Building Guarantees
- Your choice of internal and external colours
- Fixed Price Guarantee
Floorplans: Big on comfort, small on hassle in Milldale - Move in August!



Location
Lot 1216, Te Taruna Drive, Milldale


