




























Designed for Extended Family Living - Move in August!
From $1,389,000
Lot 1217, Te Taruna Drive, Milldale
Section size 400㎡
House size 180㎡
- Beds4
- Bathrooms3
- Receptions2
- Parking2
or email simonw@signature.co.nz
Visit Signature Homes Rodney & North Shore
Enquire about this Package
Designed for Extended Family Living - Move in August!
Lot 1217, Te Taruna Drive, Milldale
Designed for the Whole Family – House & Granny opportunity in Milldale!
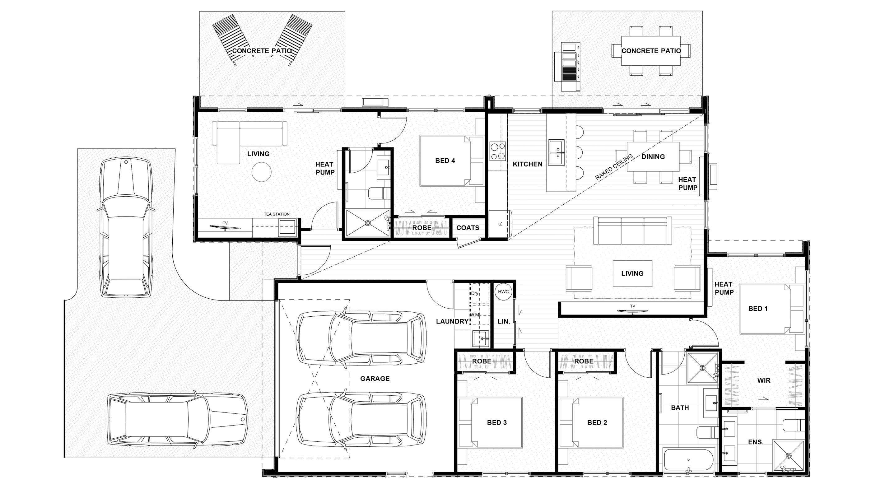
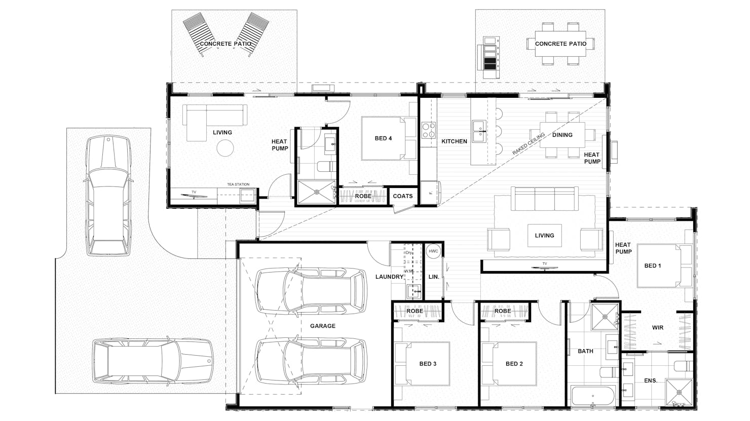
Lot 1217 is a modern, single-level home with a self-contained granny flat and designed by LTD Architectural Design. This home boasts a high-quality finish and comes with Signature Homes' 2-year maintenance guarantee. The main home features three double bedrooms, including a master with an ensuite and walk-in wardrobe, and a raking ceiling over the open-plan living area that flows to a sunny, north-facing patio. The attached granny flat offers a separate living space, tea station, generous bedroom, bathroom, and private patio - ideal for extended family, guests, or rental income.
Construction is well underway and expected to be completed by August 2026. Secure your brand-new home and start your journey with Signature Homes today!
Lot 1217 is perfectly positioned just a short stroll from the future Parkland Loop greenspace and Milldale’s upcoming town centre. Nestled between the well-established communities of Orewa, Millwater, Wainui, Dairy Flat, and Silverdale, Milldale offers a connected and convenient lifestyle. Enjoy easy access to Ahutoetoe School, the future town centre, and lush green spaces - all just minutes from your doorstep.
Feature included:
- Architecturally designed by LTD Architectural Design
- Low-maintenance, single-level home
- Three generous double bedrooms
- Spacious master suite with ensuite and walk-in wardrobe
- Feature raking ceiling to open-plan kitchen, living & dining area
- Custom-designed kitchen
- Three Heat Pump included
- Outdoor living on a north-facing concrete patio
- Self-contained granny flat for added flexibility
- Double car garage with laundry
- Driveway parking for up to three cars
- Basic landscaping package included
Renders are for illustrative purposes only and are intended as an artist’s impression
Package includes
- Signature Homes market-leading Building Guarantees
- Your choice of internal and external colours
- Fixed Price Guarantee
Floorplans: Designed for Extended Family Living - Move in August!



Location
Lot 1217, Te Taruna Drive, Milldale


