










The Wrybill: a three-bedroom house plans by Signature Homes
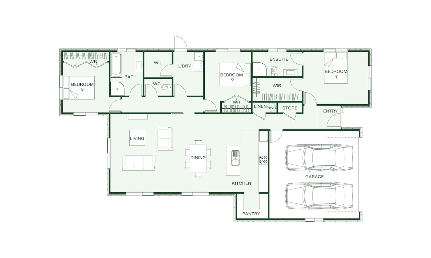
Thanks to the clever layout of the Wrybill there's a lot of space in this 185m2 home.
The plan opens into the social wing of the home with open-plan living, dining and kitchen including butlers pantry while the other wing includes a master suite, family bathroom, large laundry and separate toilet.
Our Signature Series offers a variety of pre-designed house plans that embody the quintessential Kiwi lifestyle with their open plan layouts and practical designs. These homes are crafted to provide exceptional value without compromising on quality.
Customise this plan to suit your budget and lifestyle. Book your no-obligation new home workshop today.
Our Signature Service Promise
We believe building your home should feel exciting, not stressful. That’s why when you choose Signature Homes, you’ll get:
- The best building guarantees in NZ — so you can build with total peace of mind.
- The best service in the business — we’re with you every step of the way.
- Transparent, accurate pricing — no surprises, just honesty.
- Over 40 years of experience — helping Kiwis create homes they love.
- Accurate build timelines — so you always know what’s ahead.
Wrybill
House size 185㎡
- Beds3
- Bathrooms2
- Receptions1
- Parking2
Enquire about this plan
Wrybill Floorplan





