



























Opportunity Awaits in Belgrave
From $860,000
Belgrave Drive, Rangiora
Section size 462㎡
House size 166㎡
- Beds3
- Bathrooms2
- Receptions2
- Parking2
or email courtneystevenson@signature.co.nz
Visit Signature Homes Christchurch North
Enquire about this Package
Opportunity Awaits in Belgrave
Belgrave Drive, Rangiora
Discover the perfect blend of lifestyle and location at Belgrave. Just moments from the dog park, Ashley River, and the Rakahuri walking and biking track, it's an ideal spot for outdoor enthusiasts. Plus, with Rangiora High School and the town centre nearby, you'll enjoy easy access to cafés, restaurants, and boutique shopping.
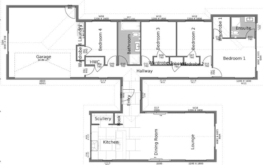
Signature Homes House & Land Package: LOT 8 The three-bedroom Austral plan maximizes space in every corner, offering a smart and efficient layout. The open-plan kitchen and dining area creates a sense of flow and openness as well as having a separate lounge. Additional highlights include a spacious family bathroom with seperate toilet and a generously sized master bedroom, ensuring both comfort and functionality throughout the home.
Advertised plan and price
- Austral three bedroom option from $860,000
The Best Bits
- 100% fixed pricing.
- Build with NZ’s best building guarantees.
- In zone for multiple schools
- Blissful serene sections right next to town
- Easy access to local amenities.
Make your move to Rangiora – The heart of North Canterbury Rangiora combines the charm of tree-lined streets, peaceful parks, and a strong sense of community, making it the perfect place for families, professionals, and those seeking a relaxed lifestyle. With the Ashley River nearby, plenty of local parks, and the convenience of being just 25 minutes from the town, everything you need is right at your doorstep.
Package includes
- Signature Homes market-leading Building Guarantees
- Your choice of internal and external colours
- Fixed Price Guarantee
Floorplans: Opportunity Awaits in Belgrave




Location
Belgrave Drive, Rangiora



